Newly renovated two-bed with skyline views — ideal for investors or city living.
24th-floor city views from a modern high-rise
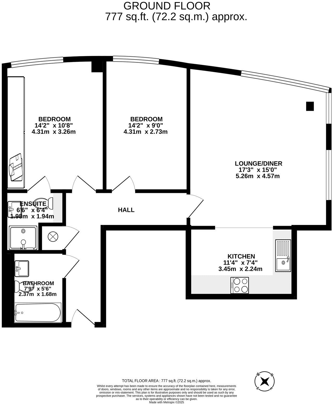
Perched in West Tower on Brook Street, this recently renovated two-bedroom apartment delivers high-floor city views and turnkey presentation. The interior includes two bathrooms, contemporary finishes, double glazing and a newly installed electric warm-air heating system — appealing for buy-to-let or owner-occupiers wanting a modern, low-maintenance flat in central Liverpool.
Located in a cosmopolitan student and commuter neighbourhood, the property benefits from excellent transport links, plentiful local amenities and proximity to colleges and leisure options. The area profile suits investors targeting strong rental demand from students and young professionals as well as first-time buyers seeking city-centre living.
Practical considerations: the home is leasehold (long lease remaining: 977 years) and uses electric warm-air heating, which can be costlier than gas alternatives. Council tax is moderate and the building is a contemporary development completed after 2007, with insulated system-built walls and recent double glazing — factors that support energy performance but note the warm-air fuel source.
Overall, this 777 sq ft, two-bedroom apartment is a ready-to-rent or move-in option for buyers who prioritise location, views and modern finishes. Viewings will suit those seeking a low-renovation purchase in a lively central district with strong rental appeal.
 2 bedroom apartment for sale in West Tower, 8 Brook Street, Liverpool, L3 — £240,000 • 2 bed • 2 bath • 859 ft²
 2 bedroom apartment for sale in West Tower, 8 Brook Street, Liverpool, L3 — £240,000 • 2 bed • 2 bath • 859 ft² 2 bedroom flat for sale in Brook Street, Liverpool, Merseyside, L3 — £260,000 • 2 bed • 2 bath • 790 ft²
 2 bedroom flat for sale in Brook Street, Liverpool, Merseyside, L3 — £260,000 • 2 bed • 2 bath • 790 ft² 2 bedroom apartment for sale in Brook Street, Liverpool, Merseyside, L3 — £280,000 • 2 bed • 2 bath • 953 ft²
 2 bedroom apartment for sale in Brook Street, Liverpool, Merseyside, L3 — £280,000 • 2 bed • 2 bath • 953 ft² 2 bedroom apartment for sale in West Tower, Brook Street, Liverpool, L3 — £270,000 • 2 bed • 2 bath • 788 ft²
 2 bedroom apartment for sale in West Tower, Brook Street, Liverpool, L3 — £270,000 • 2 bed • 2 bath • 788 ft² 2 bedroom flat for sale in Brook Street, Liverpool, Merseyside, L3 — £280,000 • 2 bed • 2 bath • 866 ft²
 2 bedroom flat for sale in Brook Street, Liverpool, Merseyside, L3 — £280,000 • 2 bed • 2 bath • 866 ft² 2 bedroom apartment for sale in West Tower, 8 Brook Street, Liverpool, L3 — £250,000 • 2 bed • 2 bath • 850 ft²
 2 bedroom apartment for sale in West Tower, 8 Brook Street, Liverpool, L3 — £250,000 • 2 bed • 2 bath • 850 ft²


























































