Modern two-bedroom terrace with parking, garden and excellent commuter links..
Freehold modern two-bedroom end-terrace, EPC B
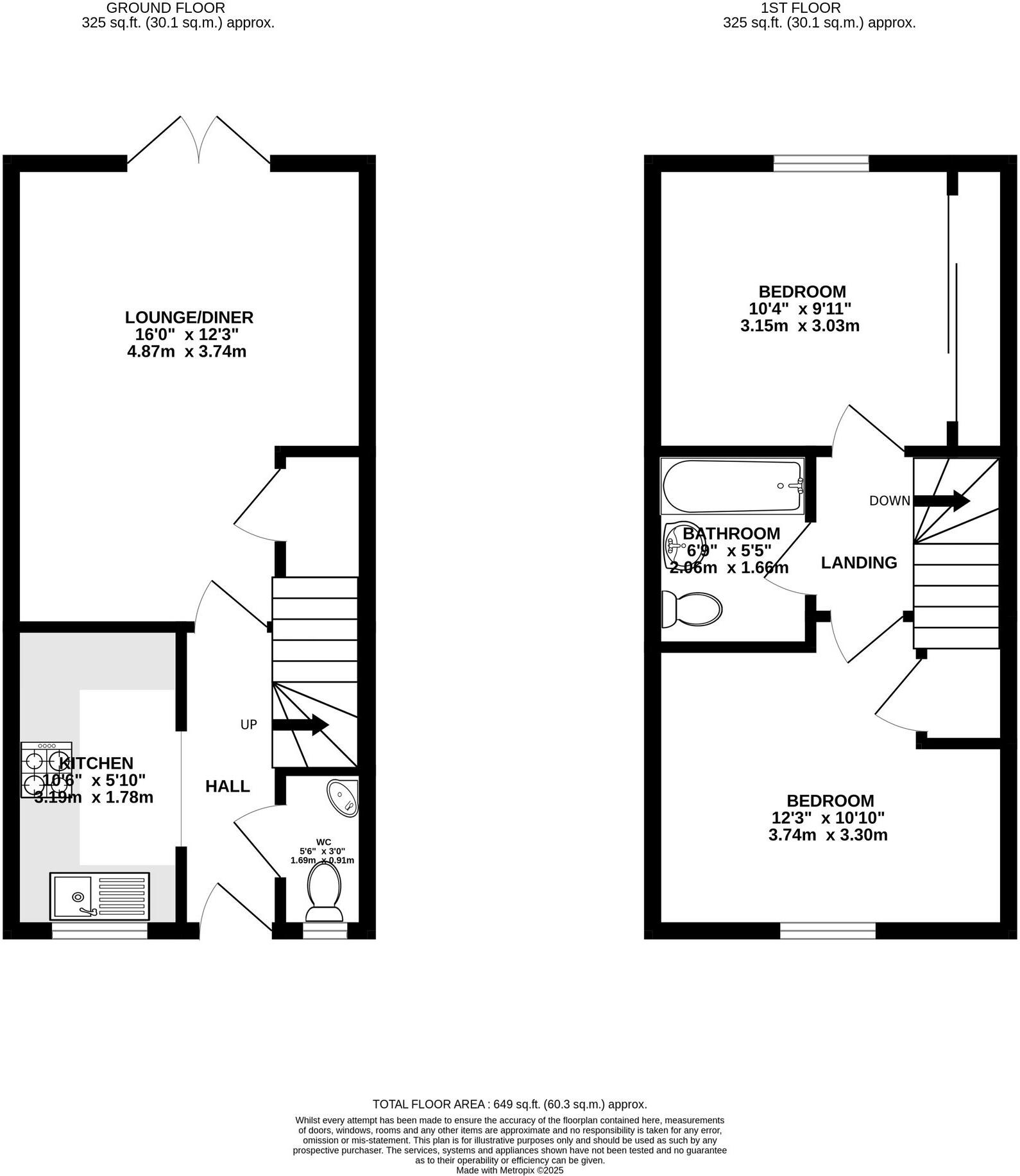
This modern two-bedroom terrace in Rogerstone offers practical, low-maintenance living for first-time buyers or commuter couples. The property is freehold, has gas central heating, double glazing and an EPC rating of B — ready to occupy with no immediate major works reported.
The ground floor features a fitted kitchen, cloakroom and a bright lounge/diner that opens via French doors onto a small, fenced rear garden. To the front there is off-street parking for two vehicles and an attached/adjacent garage, useful for additional storage or a car.
Upstairs are two double bedrooms with built-in storage and a family bathroom with a bath and overhead shower. Broadband and mobile signals are reported as fast and excellent respectively, and the location is well connected to the M4 and Rogerstone train station, making it convenient for commuters.
Notable drawbacks: the area scores as very deprived with above-average crime levels, and the plot is small. There is an annual service charge of £270.83. Buyers should satisfy themselves on neighbourhood safety and local services before committing.
2 bedroom terraced house for sale in Acer Way, Rogerstone, NP10 — £220,000 • 2 bed • 1 bath • 635 ft²
2 bedroom terraced house for sale in Honeysuckle Close, Rogerstone, NP10 — £200,000 • 2 bed • 1 bath • 635 ft²
3 bedroom semi-detached house for sale in Veronica Close, Rogerstone, NP10 — £275,000 • 3 bed • 1 bath • 904 ft²
3 bedroom terraced house for sale in Cedar Wood Drive, Rogerstone, NP10 — £240,000 • 3 bed • 2 bath • 829 ft²
4 bedroom detached house for sale in Foil Close, Rogerstone, NP10 — £425,000 • 4 bed • 2 bath • 1109 ft²
4 bedroom detached house for sale in Dehavilland Road, Rogerstone, NP10 — £425,000 • 4 bed • 2 bath • 1356 ft²


















































































