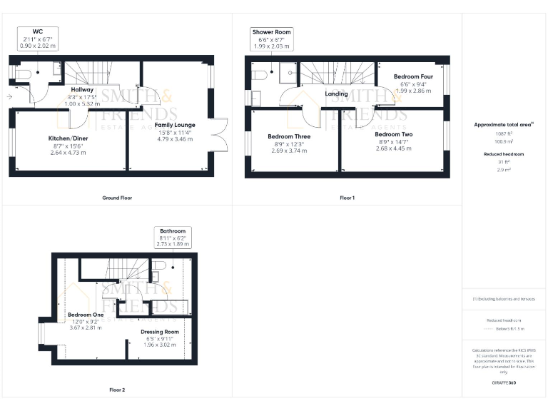
Spacious 4-bed three-storey home on a corner plot with parking and solar panels.
4 bedrooms across three floors, including dressing room and ensuite bathroom
Corner plot with larger-than-average rear garden and patio
Off-street parking to front and additional side parking space
Rear solar panels and triple glazing improve running costs
Modern kitchen/diner, rear lounge with French doors
High flood risk — factor insurance and mitigation costs
Very high local crime and very deprived area — impacts resale
Freehold tenure and affordable council tax band
A modern four-bedroom end-terraced house arranged over three floors, offering flexible family living or buy-to-let potential. The property occupies a corner plot with a generous rear garden, off-street parking to the front and side, and added energy benefits from rear solar panels and triple glazing.
Internally the layout is practical: ground-floor lounge with French doors to the garden, open kitchen/diner, guest WC, three first-floor bedrooms with a shower room, and a large second-floor principal bedroom with dressing room and bathroom. At about 1,087 sq ft the rooms are well proportioned for a modern townhouse and include useful built-in storage.
Important factors to note: the location carries a high flood risk and recorded very high local crime levels, and the wider area is classified as very deprived. These are material considerations for family buyers and investors and may affect insurance and resale. The property is freehold with affordable council tax banding, good broadband and excellent mobile signal.
Overall this is a practical, recently built family home with decent outside space and energy-saving features. It will suit buyers seeking a spacious modern townhouse close to local schools, Hartlepool Marina and transport links, or investors prepared to manage the location-specific risks.
3 bedroom town house for sale in Hartoft Square, Hartlepool, TS26 — £120,000 • 3 bed • 2 bath • 948 ft²
4 bedroom detached house for sale in Butterstone Avenue, Hartlepool, TS24 — £220,000 • 4 bed • 2 bath • 857 ft²
3 bedroom end of terrace house for sale in Raby Square, Hartlepool, TS24 8, TS24 — £79,000 • 3 bed • 1 bath • 1033 ft²
3 bedroom terraced house for sale in Sedgewick Close, Hartlepool, TS24 — £124,950 • 3 bed • 2 bath • 836 ft²
3 bedroom semi-detached house for sale in Chester Road, Hartlepool, TS24 — £145,000 • 3 bed • 2 bath • 1141 ft²
2 bedroom terraced house for sale in Dumfries Road, Hartlepool, TS25 — £129,995 • 2 bed • 1 bath • 883 ft²


























































































































