Shared ownership starter home with solar panels and countryside proximity.
Shared Ownership with shares available from 10%
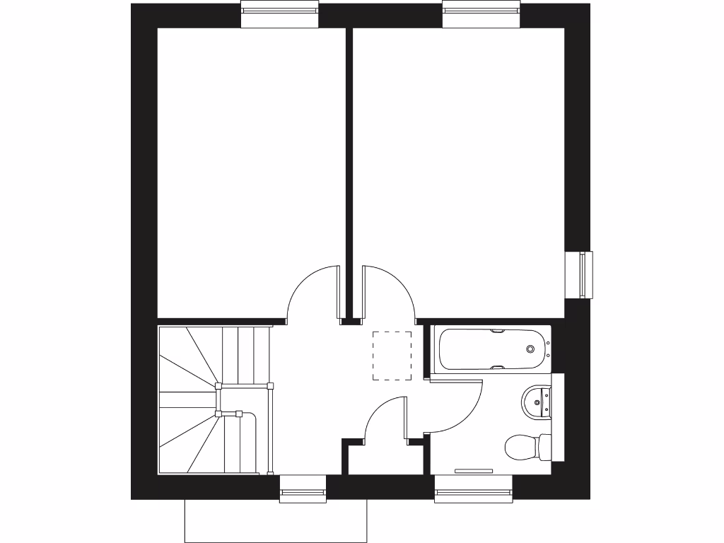
A modern two-bedroom terraced home in a new Cleeve Gardens development, offered via Shared Ownership with shares from 10%. The property is freehold and comes with a 10-year build warranty and solar panels, helping reduce running costs. Allocated off-street parking and a small private garden suit buyers seeking low-maintenance suburban living near the Cotswolds.
This home will appeal to first-time buyers or couples looking to get onto the housing ladder. Shared Ownership reduces the initial deposit and monthly outgoings compared with full purchase, and staircasing is available to buy additional shares later. The development is in a very affluent, comfortable suburbia with good broadband speeds and average mobile signal.
Buyers should note this is a new-build Shared Ownership sale: council tax banding is yet to be set, a service charge will apply (paid with rent and reviewed annually), and eligibility and affordability checks determine available share levels. Plot sizes are small and the layout suits modest household needs rather than larger families wanting extensive outdoor space.
3 bedroom terraced house for sale in Evesham Road, Bishops Cleeve, GL52 8XS, GL52 — £138,000 • 3 bed • 2 bath
4 bedroom semi-detached house for sale in Evesham Road, Bishops Cleeve, GL52 8XS, GL52 — £162,000 • 4 bed • 2 bath
2 bedroom semi-detached house for sale in Wynford Close, Bishops Cleeve, Cheltenham, GL52 — £201,500 • 2 bed • 1 bath • 758 ft²
2 bedroom semi-detached house for sale in Cleevelands, GL52 — £160,000 • 2 bed • 1 bath • 885 ft²
2 bedroom terraced house for sale in Kidnappers Lane, Cheltenham, GL53 — £111,000 • 2 bed • 2 bath
2 bedroom end of terrace house for sale in Symphony Road, Up-Hatherley, Cheltenham, GL51 — £150,000 • 2 bed • 2 bath • 789 ft²






















