**Standout Features:**
- Stunning 19th-century semi-detached cottage.
- Characterful details: exposed stone walls, original beams, stripped-back floorboards.
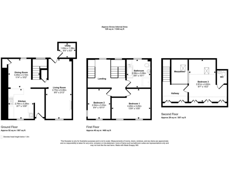
- Spacious 21-foot sitting room with a wood-burning stove.
- Open plan kitchen/dining area, ideal for family gatherings.
- Three bedrooms, including a mezzanine bedroom with an additional WC.
- Enclosed garden with seating area, perfect for relaxation.
- Centrally located in St Davids, within the Pembrokeshire Coast National Park.
- Chain-free sale for hassle-free purchasing.
**Summary:**
Discover this charming 3-bedroom period cottage nestled in the heart of St Davids. This delightful semi-detached home boasts an enchanting blend of historic character and modern convenience, featuring exquisite original beams and inviting living spaces. The expansive 21-foot sitting room, complete with a cozy wood-burning stove, offers a perfect gathering place, while the open plan kitchen/dining area enhances the home's sociable atmosphere.
With three well-proportioned bedrooms and a family bathroom that includes an integrated shower room, this property is well-suited for families or as a holiday retreat. An added bonus is the enclosed garden, just a brief walk away, providing a private sanctuary amid St Davids' vibrant community.
Enjoy the phenomenal location within this renowned small city, known for its picturesque coastal beauty and rich history, including the iconic cathedral and Bishops Palace. This property exemplifies the quintessential British countryside living, making it an exceptional investment opportunity. Take advantage of this gem at a competitive price before it slips away!
2 bedroom cottage for sale in St Davids Haverfordwest, SA62 — £230,000 • 2 bed • 1 bath • 743 ft²
3 bedroom cottage for sale in Nun St, St Davids, SA62 — £560,000 • 3 bed • 2 bath • 1622 ft²
4 bedroom cottage for sale in St Davids Haverfordwest, SA62 — £425,000 • 4 bed • 1 bath • 1496 ft²
3 bedroom terraced house for sale in Nun Street, St Davids, Haverfordwest, SA62 — £249,950 • 3 bed • 1 bath • 749 ft²
5 bedroom detached house for sale in The Pebbles, St. Davids, Haverfordwest, SA62 — £625,000 • 5 bed • 2 bath • 2869 ft²
3 bedroom terraced house for sale in Shell Cottage, 4 Catherine Street, St. Davids, SA62 — £299,950 • 3 bed • 2 bath • 1120 ft²


























































































