**Standout Features:**
- **Type:** Semi-detached true bungalow
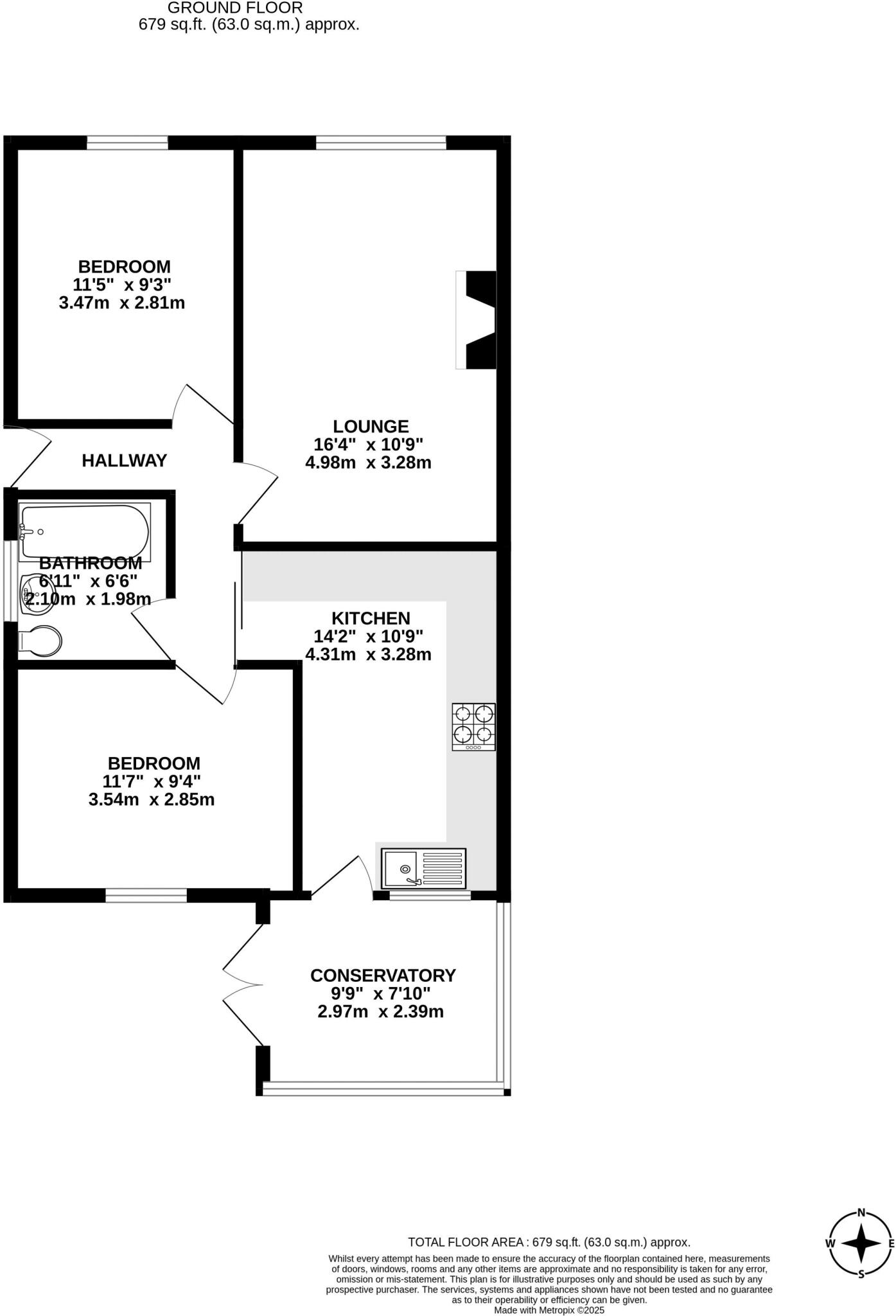
- **Bedrooms:** 2 spacious double bedrooms
- **Condition:** Recently updated with a new roof (Dec 2024) and modern boiler (installed approx. 4 years ago)
- **Gardens:** Low-maintenance front and rear gardens, with a south-facing rear patio area perfect for entertaining
- **Parking:** Off-street parking and single brick-built garage
- **Location:** Close to local amenities in sought-after Shevington
- **Chain:** Offered with no onward chain
Nestled in the picturesque village of Shevington, this charming two-bedroom semi-detached true bungalow provides the perfect blend of comfort and convenience. Ideal for downsizers or first-time buyers, the property features a generous low-maintenance front garden and a secure, sunny rear garden with ample space for outdoor enjoyment. Inside, you'll find a welcoming hallway leading to a bright lounge adorned with a charming fireplace, a well-equipped kitchen with integrated appliances, and a delightful conservatory that invites you to relax while gazing at the garden.
With two sizable double bedrooms—one boasting fitted wardrobes—and a practical bathroom for added convenience, this property is designed for an effortless lifestyle. Benefit from the village's close proximity to local amenities, including schools rated as 'Good' by Ofsted, making this a smart choice for families. The property's excellent low crime rate and affluent area classification enhance its appeal. Don't miss the chance to make this lovely bungalow yours—properties like this in Shevington are rare and move quickly.































































