NE61 3AU - 4 bedroom barn conversion for sale in Ulgham Grange Farm Co…

View on Property Piper

4 bedroom barn conversion for sale in Ulgham Grange Farm Cottages, Ulgham, Northumberland, NE61

Summary - 4 Ulgham Grange Farm Cottages, Ulgham NE61 3AU

4 bed 2 bath Barn Conversion

Characterful four-bed barn conversion with large garden and versatile stone annexe.
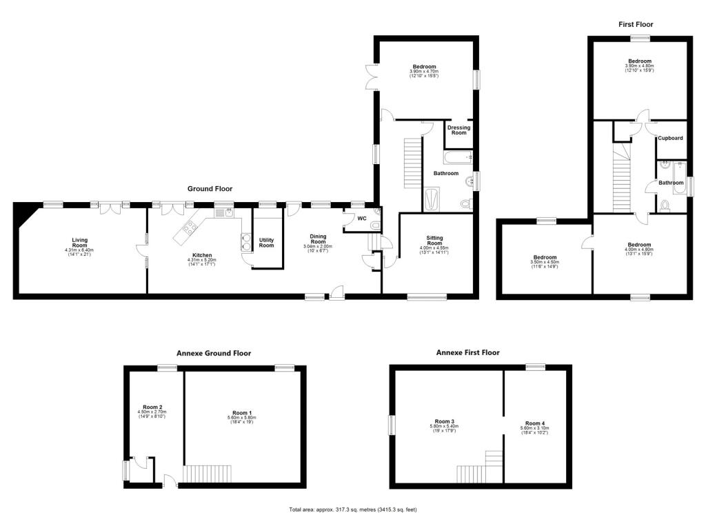
Four double bedrooms and two bathrooms across spacious 2,121 sqft
Detached Grade II listed barn conversion with original stone character
Large rear garden, mature planting and raised seating area
Detached two-storey stone annexe with utilities and EV charger
Open-plan farmhouse kitchen with Aga, skylights and terracotta floors
Off-street parking and gated courtyard; generous overall plot
Medium flood risk in area; check insurance and drainage implications
Grade II listing may restrict alterations and complicate repairs
Set within the peaceful village of Ulgham, this four-bedroom detached barn conversion combines authentic stone character with generous, flexible living spaces. The heart of the home is the open-plan farmhouse kitchen/diner with an Aga, bespoke stained-glass window and skylights, flowing to a utility and snug reception rooms for family life and entertaining. The ground floor master bedroom with walk-in wardrobe and direct courtyard access adds practical convenience.

Upstairs are two large double bedrooms, an additional versatile space off one room, and a second bathroom—providing comfortable accommodation for family members or guests. The living room’s log-burning stove and French doors open to the rear garden, creating an inviting indoor-outdoor flow. Modern comforts include mains gas central heating, double glazing and fast broadband and mobile signal.

Outside, the very large rear garden, mature planting and raised seating area provide sheltered outdoor living, while off-street parking and a gated courtyard increase practicality. A detached stone-built two-storey annexe with gas, electricity and an EV charger offers clear potential as a home office, holiday let, or extra living space—subject to any necessary consents.

Important considerations: the property is Grade II listed, which can restrict alterations and may complicate maintenance or future works. Flood risk is rated medium for the area, and tenure details are not provided. These are practical factors for buyers to consider alongside the home’s character and location close to Morpeth and the Northumberland coast.

Property Details

Image Descriptions

Textual Property Features

Target Audience

AI Tags

Detected Visual Features

EPC Details

Nearby Schools

Nearest Bars And Restaurants

,,,,}

Nearest General Shops

,,}

Nearest Grocery shops

,,}

Nearest Supermarkets

,,}

Nearest Religious buildings

,,}

Nearest Medical buildings

,,,}

Nearest Airports

,}

Nearest Leisure Facilities

,,,,}

Nearest Tourist attractions

,,}

Nearest Train stations

,,,,}

Nearest Bus stations and stops

,,,,}

Nearest Hotels

,,}

Tags

Local Market Stats

Meta

High Res Images

Compatible Images

Low res Images

Thumbnails

Raw Images