Spacious modern living with private garden near top schools.
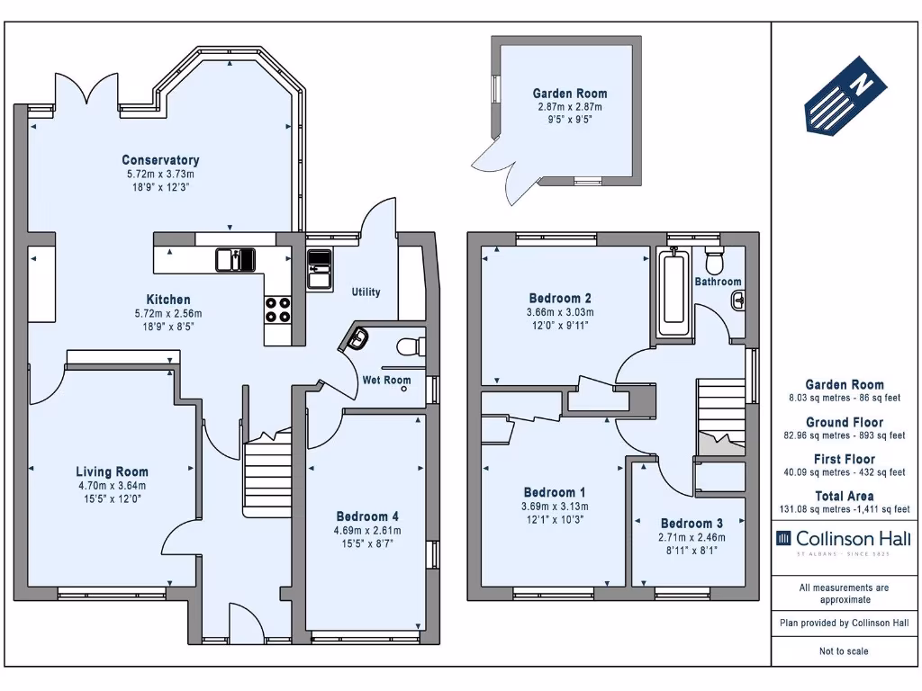
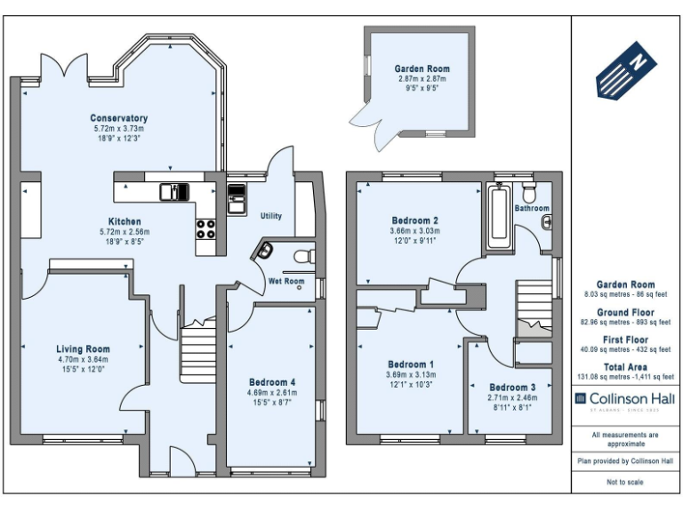
Four bedrooms, about 1,400 sq ft of living space
This attractive four-bedroom family home sits on a decent plot in a quiet cul-de-sac in Bricket Wood, offering about 1,400 sq ft of well-planned living space. The heart of the house is a large semi-open-plan kitchen, dining area and conservatory that opens to a secluded south‑east-facing garden with substantial decking — ideal for family life and entertaining. A generous lounge, utility room and a flexible ground-floor room (used as bedroom four or a home office) add everyday practicality.
Externally the property benefits from long block‑paved driveway parking for several vehicles and mature boundary planting that provides good roadside privacy. The heating is by mains‑gas boiler and radiators; glazing is double‑glazed though installation date is unknown. The house was built in the late 1970s/early 1980s and appears well presented, but fabric and services (EPC D, cavity wall insulation only partial/assumed) mean future buyers should expect typical mid‑life maintenance or energy‑efficiency improvements.
Location is strong for families: several Ofsted-rated good and outstanding primary and secondary schools are nearby, and the village has local shops, a post office and regular bus links, with quick road access to St. Albans, Radlett and Watford. Council Tax Band E applies, and the EPC rating is D (67), both useful to budget for ongoing running costs.
Overall this is a roomy, practical family home in a peaceful suburbia setting with good parking, a large entertaining space and scope for modest energy and cosmetic upgrades. It will suit buyers seeking space, garden privacy and access to highly regarded local schools.
4 bedroom detached house for sale in Mount Pleasant Lane, Bricket Wood, St. Albans, Hertfordshire, AL2 — £750,000 • 4 bed • 2 bath • 1900 ft²
4 bedroom semi-detached house for sale in Mount Pleasant Lane, Bricket Wood, St. Albans, Hertfordshire, AL2 — £650,000 • 4 bed • 1 bath • 1439 ft²
4 bedroom detached house for sale in South Riding, Bricket Wood, St. Albans, Hertfordshire, AL2 — £750,000 • 4 bed • 2 bath • 1500 ft²
3 bedroom detached house for sale in Yule Close, Bricket Wood, St. Albans, AL2 3XZ, AL2 — £800,000 • 3 bed • 2 bath • 1541 ft²
5 bedroom detached house for sale in Aspen Close, Bricket Wood, St. Albans, Hertfordshire, AL2 — £975,000 • 5 bed • 3 bath • 2321 ft²
4 bedroom detached house for sale in Field View Rise, Bricket Wood, St. Albans, Hertfordshire, AL2 — £700,000 • 4 bed • 2 bath • 1658 ft²










































































