Flexible family living with annexe potential and a sunny garden.
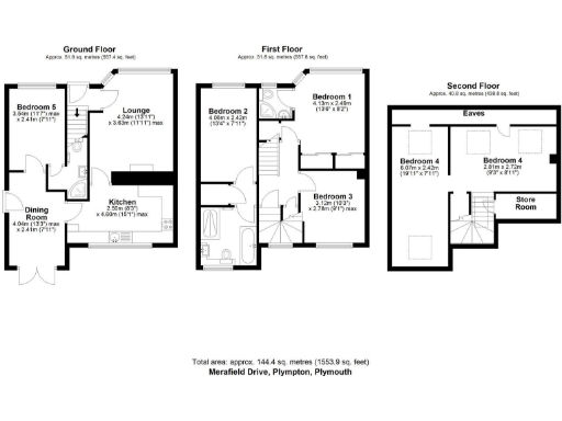
- Extended five-bedroom semi-detached family home
- Annexe potential: ground-floor room with private en‑suite
- Newly installed family bathroom plus main en‑suite
- South-facing private rear garden with deck and powered shed
- Off-street parking for three cars on block-paved driveway
- Built 1930s; retains period character and may need updating
- Double glazing present; install date unknown
- Freehold, EPC C, mains gas boiler and radiators
This extended five-bedroom semi-detached home on a quiet Plympton cul-de-sac suits a growing family seeking flexible space. The house delivers three reception rooms, an excellent second-floor bedroom/home‑office, and annexe potential with a private en‑suite off the ground floor — useful for guests or multigenerational living.
Practical strengths include off‑road parking for three cars, a fully enclosed south‑facing garden, and a newly installed family bathroom alongside a main en‑suite. The kitchen and dining layout opens well to the garden, and a useful powered garden shed provides extra storage or workshop space.
Built in the 1930s, the property benefits from double glazing and mains gas central heating but retains period aspects that may appeal to character-seekers. Some areas will benefit from updating to match modern finishes throughout; buyers should note the glazing install date is unknown and some rooms show scope for refurbishment.
Overall this is a spacious, freehold family home with clear potential to personalise and create a self-contained annexe if required. Its location offers easy access to local schools, green spaces, and transport links while sitting in an affluent, low-crime neighbourhood.
4 bedroom semi-detached house for sale in Merafield Drive, Plymouth, PL7 — £300,000 • 4 bed • 2 bath • 908 ft²
4 bedroom detached house for sale in Plympton, Plymouth, PL7 — £425,000 • 4 bed • 2 bath • 1635 ft²
5 bedroom semi-detached house for sale in ** Mannamead - Four bedrooms, separate annexe **, PL3 — £575,000 • 5 bed • 3 bath • 2226 ft²
3 bedroom semi-detached house for sale in Underlane, Plympton, Plymouth, Devon, PL7 Semi-Detached Family Home with Large Garden, PL7 — £300,000 • 3 bed • 2 bath • 753 ft²
3 bedroom semi-detached house for sale in Underlane, Plympton, Plymouth, PL7 — £315,000 • 3 bed • 1 bath • 969 ft²
5 bedroom detached house for sale in Neal Close, Plympton, PL7 1YY, PL7 — £450,000 • 5 bed • 3 bath • 1463 ft²






















































































