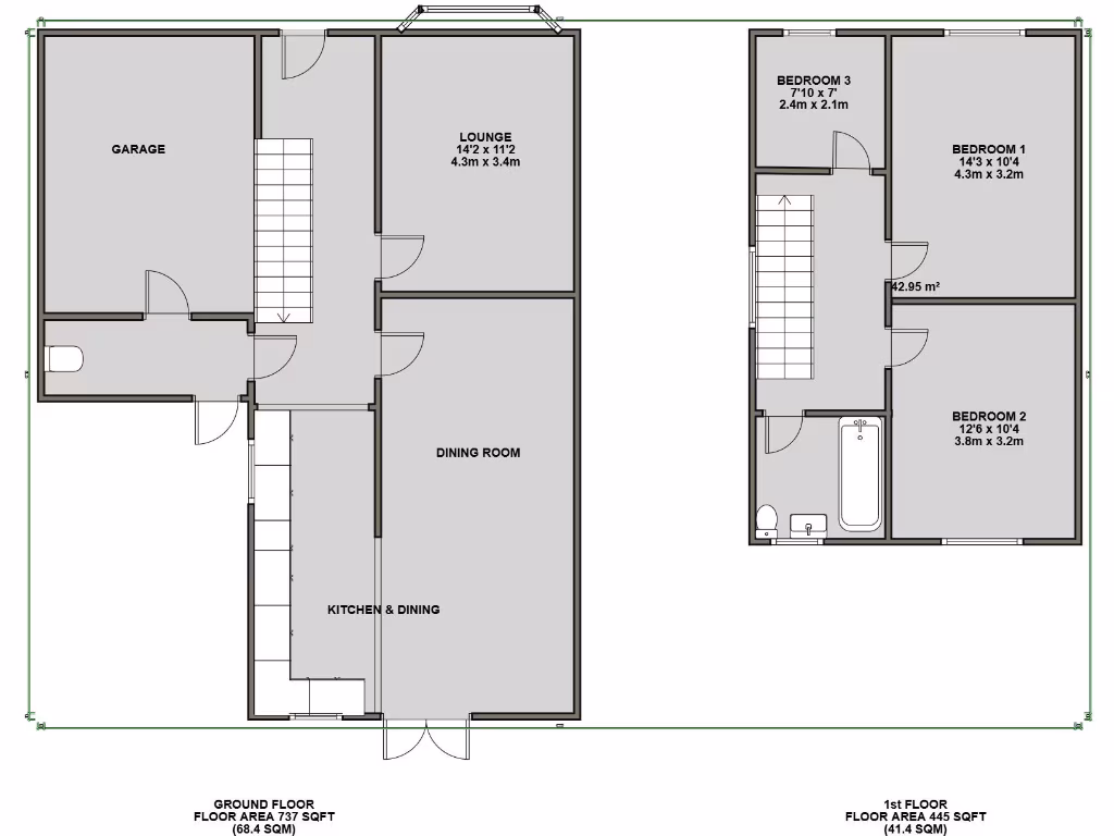
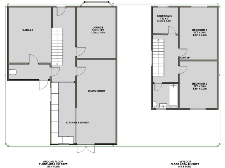
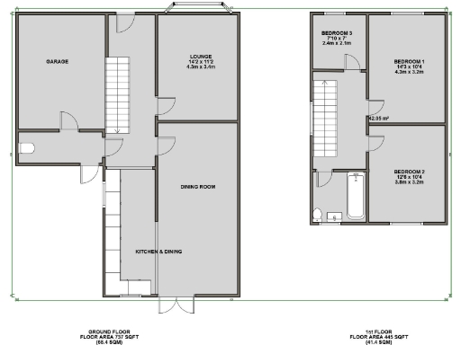
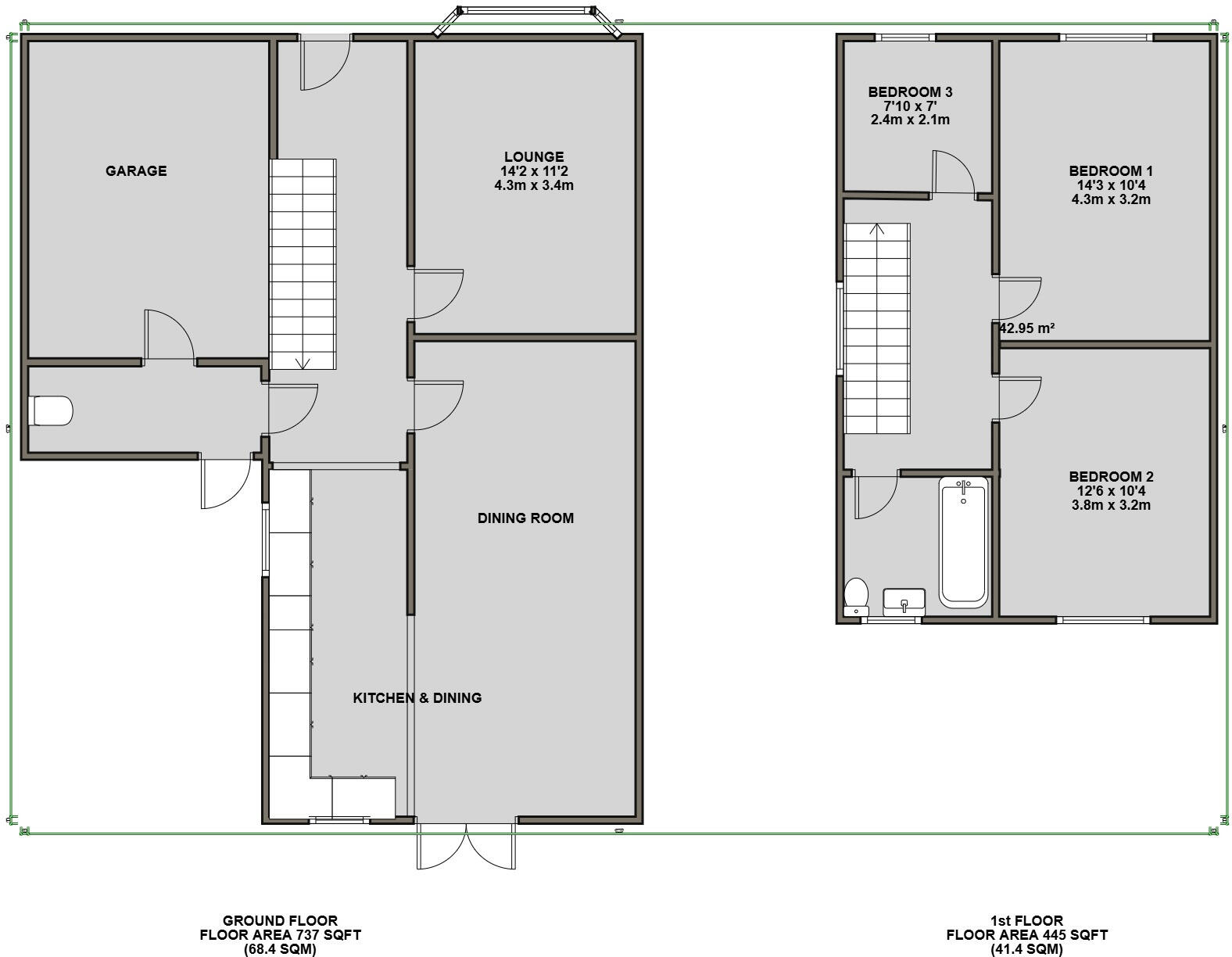
**Standout Features:**
- 3 spacious bedrooms and a family bathroom
- Contemporary living and dining area with large windows and fireplace
- Garden and garage for added convenience
- Recently installed double glazing
- Proximity to public transport and local amenities
- Affordable council tax
**Potential Concerns:**
- Above-average crime rate in the area
- Cavity walls with no insulation, potential for energy inefficiency
- Some dated wear and tear noted
Discover this charming 3-bedroom end-of-terrace home in the vibrant SE2 postcode, perfect for families and commuters alike. With a guide price of £520,000, this property offers a bright living space, thoughtfully designed for comfort and style, featuring a spacious open-plan living and dining area bathed in natural light. The home comes equipped with double glazing and a cozy fireplace, creating a welcoming atmosphere ideal for family life.
The convenient location places you within a short stroll to the Abbey Wood railway station, excellent for daily commutes. Families will appreciate the proximity to top-rated schools, such as Alexander McLeod Primary School just 0.15 km away, along with local amenities including supermarkets and dining options within walking distance. Outdoor lovers can explore nearby parks such as the tranquil Lesnes Abbey Monks Garden.
While the property showcases great potential, please note the above-average crime rate and some wear that might require attention. The garden and garage provide excellent options for storage and outdoor enjoyment, making this home a fantastic canvas for a personalized haven. Act now to seize this opportunity and secure your future in a friendly, growing community!
3 bedroom end of terrace house for sale in Manton Road, London, SE2 — £525,000 • 3 bed • 1 bath • 937 ft²
3 bedroom end of terrace house for sale in Rushdene, London, SE2 — £500,000 • 3 bed • 1 bath • 1015 ft²
3 bedroom end of terrace house for sale in Chalcombe Road, London, SE2 — £450,000 • 3 bed • 1 bath • 1237 ft²
3 bedroom terraced house for sale in Finchale Road, London, SE2 — £450,000 • 3 bed • 1 bath • 862 ft²
3 bedroom terraced house for sale in Federation Road, London, SE2 — £475,000 • 3 bed • 1 bath • 924 ft²
3 bedroom terraced house for sale in Bostall Lane, Abbey Wood, London, SE2 0JX, SE2 — £450,000 • 3 bed • 1 bath • 797 ft²


















































