Solar income, generous living and garage parking in central Devizes.
Over 1,550 sq ft across three storeys, spacious family layout
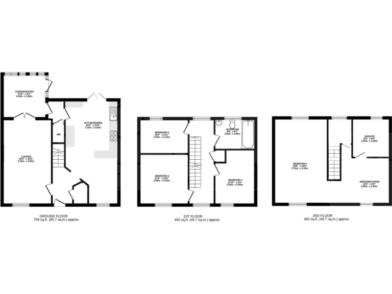
This semi-detached townhouse on Keepers Road offers spacious, flexible family living across three levels, with over 1,550 sq ft and four double bedrooms. The layout centres on a kitchen designed as the home hub and a light-filled glass-roof conservatory that extends the living space. Practical features include a garage, driveway parking and a decent low-maintenance rear garden.
A key running-cost advantage is the installed solar PV with battery storage that generates income and reduces bills; the property also benefits from mains gas central heating and double glazing. Constructed 2007–2011 and rated EPC C, it’s modern in build but offers sensible scope to personalise finishes to your taste.
Location is a strong selling point: close to shops, cafes, parks and canal walks in Devizes, with a mix of local schools nearby (two rated Good, others requiring improvement). Transport links and local amenities suit family life and everyday convenience. Note the area records above-average crime; prospective buyers should consider this and local safety measures.
Overall this is a roomy, energy-efficient family home in a very affluent neighbourhood that suits buyers seeking ready-to-live-in space with eco-credentials and modest scope for cosmetic updating.
4 bedroom detached house for sale in Fruitfields Close, Devizes, Wiltshire, SN10 — £530,000 • 4 bed • 3 bath • 2084 ft²
4 bedroom semi-detached house for sale in Corn Croft Lane, Devizes, Wiltshire, SN10 2FR, SN10 — £400,000 • 4 bed • 2 bath • 1436 ft²
4 bedroom semi-detached house for sale in Broadleas Park, Devizes, Wiltshire, SN10 5JA, SN10 — £330,000 • 4 bed • 2 bath • 1623 ft²
3 bedroom terraced house for sale in Forty Acres Road, Devizes, SN10 — £260,000 • 3 bed • 1 bath • 1069 ft²
3 bedroom semi-detached house for sale in Devizes, Wiltshire, SN10 3DE, SN10 — £252,000 • 3 bed • 1 bath • 851 ft²
4 bedroom detached house for sale in Elizabeth Drive, Devizes, Wiltshire, SN10 — £375,000 • 4 bed • 2 bath • 1290 ft²










































































































































