Affordable, low-maintenance home near schools and commuter routes.
Victorian stone facade with period character
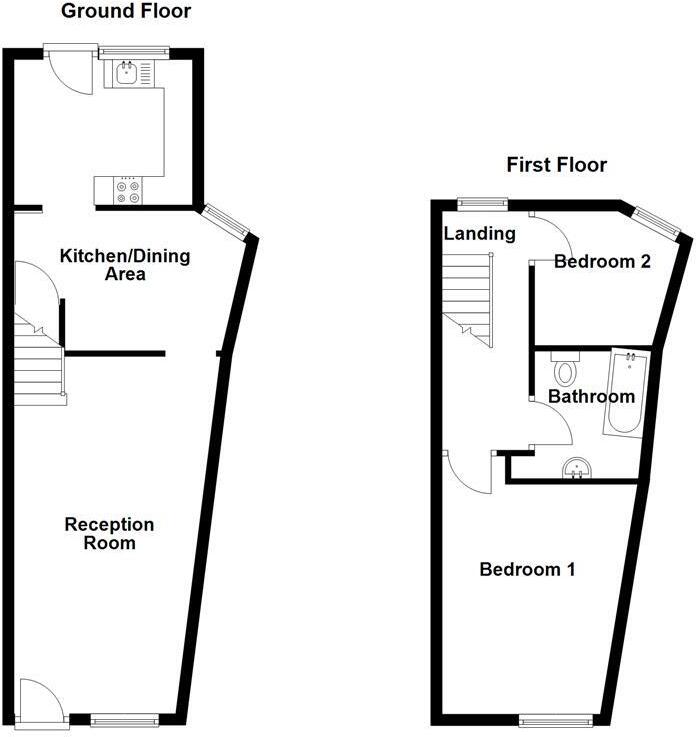
This two-bedroom mid-terrace blends Victorian stone character with a practical, modern interior — ideal for a first-time buyer or buy-to-let investor seeking low-maintenance living. The generous reception room opens to a fitted kitchen/dining area, while the paved rear yard and small forecourt keep outside upkeep minimal. Gas central heating, double glazing and a fitted bathroom mean the property is largely move-in ready.
Important practical points are clear: the home is leasehold and has an EPC rating of D, and the original stone walls are likely uninsulated. Parking is on-street only, and the second bedroom is compact, so the layout best suits a couple, single buyer or tenant rather than a growing family. Council Tax sits in band B and there is no flood risk.
Location is a strong selling point — quiet residential street with fast broadband, excellent mobile signal, low crime and easy access to major commuter routes. Local schools (including a Good-rated primary and secondary options) and village amenities are close by. Overall, the house offers affordable entry into a very affluent area with period charm and straightforward potential to add value if energy improvements are pursued.
2 bedroom terraced house for sale in Gladstone Street, Great Harwood, BB6 — £110,000 • 2 bed • 1 bath • 893 ft²
2 bedroom terraced house for sale in Whalley Road, Clayton Le Moors, BB5 — £100,000 • 2 bed • 1 bath • 861 ft²
2 bedroom terraced house for sale in Hill Street, Baxenden, Accrington, BB5 — £140,000 • 2 bed • 1 bath • 851 ft²
2 bedroom terraced house for sale in Franklin Street, Clitheroe, BB7 1DQ, BB7 — £139,950 • 2 bed • 1 bath • 722 ft²
2 bedroom terraced house for sale in Cemetery Road, Darwen, Lancashire, BB3 — £170,000 • 2 bed • 1 bath • 1045 ft²
2 bedroom terraced house for sale in Store Street, Lower Darwen, BB3 — £119,950 • 2 bed • 1 bath • 747 ft²


































































