**Standout Features:**
- Three spacious double bedrooms
- End of terrace character property with stunning views
- Combi boiler with mains gas heating
- Generous living space and low-maintenance garden
- No onward chain, making it a hassle-free purchase
- Excellent access to local amenities and transport links
**Potential Downsides:**
- On-street parking only
- Relatively small plot size
- No insulation assumed in walls
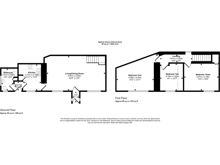
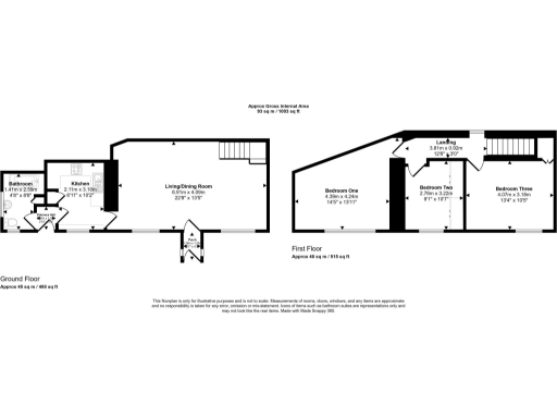
Nestled in the charming area of Pantygraigwen, this three double bedroom end of terrace property offers a perfect blend of character and modern comfort. The inviting entrance leads to a spacious living/dining room, a convenient downstairs bathroom, and a porch, creating a welcoming environment for families or first-time buyers. With no onward chain and a council tax band B, this home is not only affordable but also presents a great opportunity for future renovations.
Enjoy breathtaking views from the comfort of your own home, while benefiting from excellent access to local amenities in Pontypridd, including shops, schools, and recreational facilities—all just a short drive or walk away. For commuters, the close proximity to the A470 and M4 means Cardiff, Newport, and Swansea are easily reached. With fast broadband, excellent mobile signal, and appealing community vibes, this property is ideal for aspiring urban households looking to put their personal touch on a comfortable space. Don’t miss out—properties like this, with such a blend of features and potential, won’t stay on the market long.
3 bedroom detached house for sale in Pantygraigwen Road, Panygraigwen, Pontypridd, CF37 — £260,000 • 3 bed • 2 bath • 1053 ft²
3 bedroom semi-detached house for sale in Pantygraigwen Road, Pantygraigwen, Pontypridd, CF37 — £325,000 • 3 bed • 1 bath • 1418 ft²
3 bedroom terraced house for sale in Berw Road, Pontypridd, , CF37 — £150,000 • 3 bed • 1 bath • 1322 ft²
3 bedroom detached house for sale in Pantygraigwen Road, Pontypridd, CF37 — £230,000 • 3 bed • 1 bath • 786 ft²
3 bedroom terraced house for sale in Rheolau Terrace, Trehafod, Pontypridd, CF37 — £135,000 • 3 bed • 1 bath • 774 ft²
2 bedroom semi-detached house for sale in Glas Cwm, Coed-Y-Cwm, Pontypridd, CF37 — £275,000 • 2 bed • 1 bath • 959 ft²


































































































































































