OX25 2BE - 2 bedroom terraced house for sale in Bicester, Oxfordshire,…

View on Property Piper

2 bedroom terraced house for sale in Bicester, Oxfordshire, OX25

Summary - Graven Hill, Bicester, Oxfordshire, OX25 OX25 2BE

2 bed 1 bath Terraced

25% shared ownership with staircasing available
25% share price £82,500; full value £330,000
Monthly rent £622.92; service charge £20
Leasehold: 118 years remaining
Private enclosed rear garden; low-maintenance
Allocated off-street parking; chain free, vacant
NHBC warranty; EPC grade B
Fast fibre broadband and excellent transport links
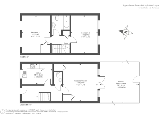
A modern two-bedroom mid-terrace on Graven Hill offered as a 25% shared ownership opportunity — ideal for first-time buyers seeking an affordable route onto the local market. The home includes an open living diner, separate kitchen, ground-floor W.C., private enclosed rear garden and allocated off-street parking, all within easy walking distance of local amenities and good transport links.

The property is covered by NHBC warranty and benefits from fast fibre-optic broadband, gas central heating and an EPC grade B. The development is family-oriented and very low in crime, with several primary and secondary schools nearby, leisure facilities and cycling routes close at hand.

Buyers should note this is a leasehold shared ownership sale: a 25% share is offered at £82,500 (full market value £330,000). Monthly costs include rent of £622.92 and a service charge of £20; 118 years remain on the lease. Staircasing is available in future, allowing increased ownership over time.

The house is an average-sized, low-maintenance new build with straightforward upgrade potential to personalise the interiors. It is chain-free and available vacant, making for a quick move-in for an owner-occupier wanting an affordable foothold in Bicester.

Property Details

Image Descriptions

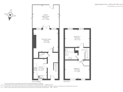
Floorplan Description

Rooms

Textual Property Features

Detected Visual Features

EPC Details

Nearby Schools

Nearest Bars And Restaurants

,,,,}

Nearest General Shops

,,}

Nearest Grocery shops

,,}

Nearest Supermarkets

,,}

Nearest Religious buildings

,,}

Nearest Medical buildings

,,,}

Nearest Leisure Facilities

,,,,}

Nearest Tourist attractions

,,}

Nearest Train stations

,,,,}

Nearest Bus stations and stops

,,,,}

Nearest Hotels

,,}

Tags

Local Market Stats

AirBnB Data

Similar Properties

Meta

High Res Images

Compatible Images

Low res Images

Thumbnails

Raw Images

High Res Floorplan Images

Compatible Floorplan Images

Low res Floorplan Images

FloorplanImages Thumbnail

Raw Floorplan Images