**Standout Features:**
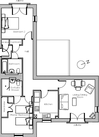
- Spacious two-bedroom apartment with east-facing views
- Stunning Juliet balcony and separate kitchen and living room
- Fully fitted SieMatic kitchen with high-end Corian worktops and integrated appliances
- Main bedroom includes fitted wardrobes and an ensuite shower room
- Access to exclusive Audley Club facilities, including a health club and swimming pool
- Lift access for convenience
- Located within the luxurious Audley Ellerslie retirement village
**Summary:**
Discover this elegant two-bedroom apartment in the prestigious Audley Ellerslie retirement village, located on the edge of the beautiful Malvern Hills. This well-appointed residence features an inviting east-facing aspect, a Juliet balcony, and breathtaking views from every window. The spacious layout includes a modern separate kitchen with a fully-equipped SieMatic design, complemented by contemporary Corian worktops and integrated appliances, perfect for those who enjoy cooking.
The main bedroom offers fitted wardrobes and an ensuite bathroom, ensuring ample storage and privacy. Residents will benefit from lift access and exclusive use of the Audley Club facilities, including a restaurant, bistro bar, fitness suite, and swimming pool—all at your doorstep.
This property is ideal for those seeking a community-focused retirement lifestyle, with the added advantage of vibrant local amenities and quality schools nearby. While a monthly management charge and deferred fees apply, the luxurious lifestyle and tranquil setting make this apartment a remarkable opportunity hardly to be missed. Embrace the chance to call this lovely apartment home while enjoying the comforts of this thriving retirement community.
2 bedroom retirement property for sale in Ellerslie Drive, Malvern, Worcestershire, WR14 — £455,000 • 2 bed • 2 bath • 954 ft²
2 bedroom retirement property for sale in Ellerslie Drive, Malvern, Worcestershire, WR14 — £495,000 • 2 bed • 2 bath • 913 ft²
2 bedroom retirement property for sale in Ellerslie Drive, Malvern, Worcestershire, WR14 — £350,000 • 2 bed • 2 bath • 887 ft²
2 bedroom retirement property for sale in Ellerslie Drive, Malvern, Worcestershire, WR14 — £475,000 • 2 bed • 2 bath • 898 ft²
2 bedroom retirement property for sale in Ellerslie Drive, Malvern, Worcestershire, WR14 — £475,000 • 2 bed • 2 bath • 988 ft²
2 bedroom retirement property for sale in Apartment 9, Lewis Court, 2 Ellerslie Drive, Malvern, WR14 — £350,000 • 2 bed • 2 bath • 914 ft²


















































