**Standout Features:**
- First-floor maisonette in Fleet town center
- One double bedroom with built-in wardrobes
- Allocated parking for two vehicles
- Garden space available
- In process of lease extension to 999 years
- Ground rent of £900 pa
- Council Tax Band C
- Close to highly-rated schools
**Summary:**
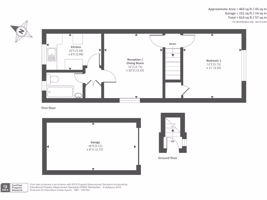
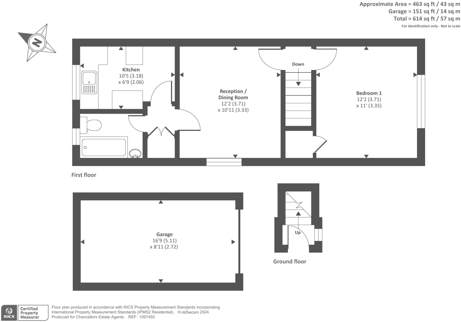
Presenting a charming first-floor maisonette set in the highly sought-after town of Fleet. Spanning 614 square feet, this well-presented apartment features a welcoming entrance hall, a cozy lounge/dining room, a kitchen with mid-20th-century charm in need of some updates, and a spacious double bedroom equipped with built-in wardrobes. The property also includes allocated parking for two vehicles and access to a garden, enhancing outdoor leisure options.
Located within a mile from Fleet's mainline train station, this apartment is perfect for commuters and families alike, with outstanding local schools just moments away. While the property does require updates in some areas, its potential is promising, especially with the ongoing process to extend the lease to an impressive 999 years. At a competitively priced £130,000, this maisonette offers an excellent opportunity for first-time buyers or investors seeking rental potential in an affluent area. Don’t miss your chance to make this cozy retreat your own; schedule a viewing today!
1 bedroom maisonette for sale in St. Michaels Close, Fleet, Hampshire, GU51 — £180,000 • 1 bed • 1 bath • 473 ft²
1 bedroom maisonette for sale in 17 Fleet Road, Fleet, GU51 — £170,000 • 1 bed • 1 bath • 303 ft²
1 bedroom apartment for sale in Church Road, Fleet, Hampshire, GU51 — £180,000 • 1 bed • 1 bath • 469 ft²
3 bedroom apartment for sale in Cranbrook Court, Fleet, GU51 — £325,000 • 3 bed • 1 bath • 871 ft²
1 bedroom maisonette for sale in Fleet Road, Fleet, Hampshire, GU51 — £220,000 • 1 bed • 1 bath • 562 ft²
1 bedroom apartment for sale in Old Dairy Close, Fleet, Hampshire, GU51 — £180,000 • 1 bed • 1 bath • 540 ft²


















































