NG19 0HH - House for sale in New Mill Lane, Forest Town, Mansfield, NG…

View on Property Piper

House for sale in New Mill Lane, Forest Town, Mansfield, NG19 0HH, NG19

Summary - 252 NEW MILL LANE FOREST TOWN MANSFIELD NG19 0HH

1 bed 1 bath House

### Standout Features:
- Established mixed-use property with 13,600 sq ft of industrial units.
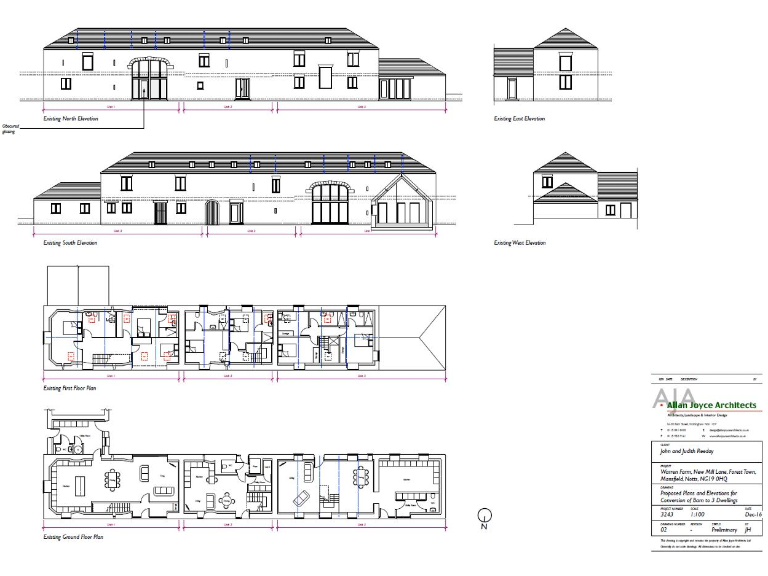
- Extant planning permission for converting a Grade II listed barn into two residential dwellings.
- Modern stabling facilities for over 27 horses with extensive equestrian amenities including a floodlit manège.
- Approximately 12.6 acres of picturesque grazing land with access to public bridleway.
- Significant rental potential estimated at £167,210.
- Opportunity for additional income through commercial leasing and future developments.

### Summary:
Warren Farm Stables is a versatile property nestled on nearly 13 acres of scenic Nottinghamshire countryside, ideal for investors seeking a mixed-use opportunity or equestrian enthusiasts. The site includes substantial industrial units, equestrian facilities with stabling for over 27 horses, and a barn with approved plans for conversion into two residential units, enhancing its future value. A large former agricultural building and additional workshops further contribute to the property's impressive income potential, with previous rental income reaching £80,000 per annum.

The current layout accommodates a high-standard office suite and staff canteen, making it ready for immediate operations or rental. The picturesque location offers easy access to bridleways for horse riding and tranquil living, while the region is known for its low crime rate and affluence. However, potential buyers should note the Grade II listing status of the stone barn, which may complicate renovations. With positive pre-planning for holiday cottages in recent discussions, this property presents an exclusive investment opportunity in a desirable area—don’t miss the chance to make it your own!

Property Details

Image Descriptions

Floorplan Description

Textual Property Features

Detected Visual Features

Nearby Schools

Nearest Bars And Restaurants

,,,,}

Nearest General Shops

,,}

Nearest Grocery shops

,,}

Nearest Supermarkets

,,}

Nearest Religious buildings

,,}

Nearest Medical buildings

,,,}

Nearest Leisure Facilities

,,,,}

Nearest Tourist attractions

,,}

Nearest Train stations

,,,,}

Nearest Bus stations and stops

,,,,}

Nearest Hotels

,,}

Tags

Local Market Stats

Similar Properties

Meta

High Res Images

Compatible Images

Low res Images

Thumbnails

Raw Images

High Res Floorplan Images

Compatible Floorplan Images

Low res Floorplan Images

FloorplanImages Thumbnail

Raw Floorplan Images