Low-maintenance garden, driveway and fast broadband near the coast.
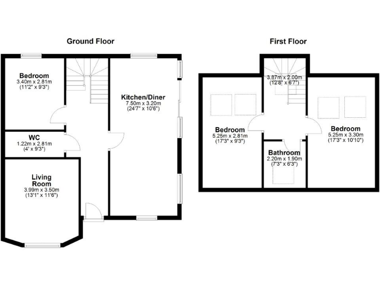
Detached new build with three bedrooms
A bright three-bedroom detached new build offering practical family living in Saltcoats. The ground floor features a large open dining kitchen, lounge, ground-floor bedroom and WC, while two double bedrooms and a family bathroom occupy the first floor. The house benefits from gas central heating, double glazing and an EPC B rating.
Externally the property is low-maintenance: easy-to-manage gardens with a decked patio and a paved driveway provide off-street parking and outdoor space without heavy upkeep. Broadband speeds are fast and mobile signal is excellent, useful for home working or streaming. The overall internal floor area is about 1,173 sq ft, giving a comfortable room count and flexible layout for a starter family or buyers seeking rental potential.
Buyers should note the wider context: the immediate area is described as very deprived with local classifications indicating social and economic challenges. The property has a single family bathroom and is priced at £210,000; purchasers sensitive to neighbourhood indicators or seeking a premium location should view locally to judge suitability. A full viewing and the complete Home Report are recommended to confirm finish, fittings and exact condition.
Saltcoats’ seaside towns offer local shops, schools, restaurants and regular public transport links to Glasgow and surrounding towns. For buyers prioritising convenience, low maintenance and modern fittings in an affordable detached home, this property presents clear practical value, while those prioritising neighbourhood profile or higher-end finishes should assess carefully in person.
4 bedroom detached house for sale in 2 Ronnie McNicol Place, Saltcoats, KA21 6BU, KA21 — £244,000 • 4 bed • 2 bath
3 bedroom terraced house for sale in Arran View, Glen Banks Road, Saltcoats, Ayrshire, KA21 6BS, KA21 — £192,000 • 3 bed • 1 bath • 654 ft²
4 bedroom detached house for sale in Mayfields
High Road,
Saltcoats,
KA21 — £275,000 • 4 bed • 1 bath • 1581 ft²
3 bedroom detached house for sale in Arran View, Glen Banks Road, Saltcoats, Ayrshire, KA21 6BS, KA21 — £240,000 • 3 bed • 1 bath • 315 ft²
3 bedroom terraced house for sale in Arran View, Glen Banks Road, Saltcoats, Ayrshire, KA21 6BS, KA21 — £192,000 • 3 bed • 1 bath • 654 ft²
3 bedroom end of terrace house for sale in Arran View, Glen Banks Road, Saltcoats, Ayrshire, KA21 6BS, KA21 — £192,000 • 3 bed • 1 bath • 580 ft²






























































