Affordable village terrace ideal for first-time buyers or investors close to Durham.
- Chain free sale, ready for immediate occupation or letting
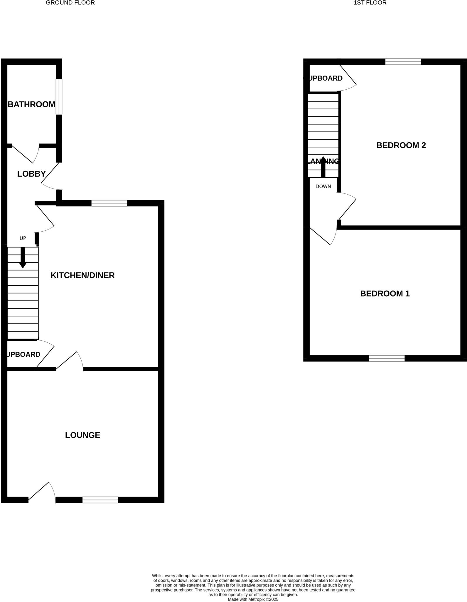
- Two bedrooms and one ground-floor bathroom
- Contemporary dining kitchen; low-maintenance finish
- Enclosed rear courtyard, small private outdoor space
- Mid-Victorian mid-terrace; period stone walls, pre-1900
- External walls likely uninsulated; retrofit may be required
- Double glazing present, installation date unknown
- Fast broadband, excellent mobile signal, low local crime
Chain-free two-bedroom terrace in Langley Park, offered with immediate possession and strong local links. The house sits on a small plot opposite the village church and provides practical living arranged over two storeys: living room, contemporary dining kitchen, ground-floor bathroom and two first-floor bedrooms. Broadband and mobile signals are strong and the property benefits from mains gas central heating.
The kitchen is modern and low-maintenance, giving you a usable heart to the home from day one. The enclosed rear courtyard adds private outdoor space without heavy upkeep. This mid-Victorian terrace retains period character externally but is an average-sized home suited to first-time buyers or buy-to-let investors seeking straightforward accommodation in a comfortable suburb.
Important practical points: the property dates from before 1900 and the external stone walls are likely uninsulated (assumed). Double glazing is present but install date is unknown. There is a single bathroom on the ground floor, and overall room sizes are small-to-medium; some updating or insulation work may be needed depending on buyer expectations. Local schools and amenities are within walking distance and Durham City is a short drive away for wider services.
2 bedroom terraced house for sale in Langley Street, Langley Park, Durham, DH7 — £134,950 • 2 bed • 1 bath
2 bedroom terraced house for sale in Logan Street, Langley Park, Durham, DH7 — £55,000 • 2 bed • 1 bath
2 bedroom end of terrace house for sale in Church Street, Langley Park, Durham, DH7 — £112,500 • 2 bed • 1 bath
2 bedroom terraced house for sale in Lambton Street, Langley Park, DH7 — £70,000 • 2 bed • 1 bath • 722 ft²
2 bedroom terraced house for sale in Logan Street, Langley Park, Durham, DH7 — £65,000 • 2 bed • 1 bath • 768 ft²
2 bedroom terraced house for sale in Elm Street, Langley Park, Durham, DH7 — £80,000 • 2 bed • 1 bath • 665 ft²


























