LS17 9DW - 4 bedroom detached house for sale in Bingley Bank, Bardsey,…

View on Property Piper

4 bedroom detached house for sale in Bingley Bank, Bardsey, Leeds, West Yorkshire, LS17

Summary - 10 BINGLEY BANK BARDSEY LEEDS LS17 9DW

4 bed 2 bath Detached

**Standout Features:**
- Spacious detached family home with four bedrooms and two bathrooms
- Located in a serene cul-de-sac with stunning countryside views
- Generous parking: driveway for two cars and a double garage
- Expansive gardens, both rear and side, providing high privacy
- Well-lit interiors with a bright entrance porch and sunny conservatory
- Convenient access to reputable local schools and community amenities

**Concise Summary:**
Discover this inviting four-bedroom detached family home nestled in the historic village of Bardsey, offering an impressive layout perfect for family living. Set on a corner plot at the end of a quiet cul-de-sac, the property boasts breathtaking views of the surrounding countryside. The heart of the home includes a spacious living room that flows into a dining area, alongside a well-equipped kitchen and an airy conservatory that opens to a meticulously landscaped private garden.

The first floor features a master suite with an en-suite shower room, complemented by three additional double bedrooms and a family bathroom. Outdoor space is abundant with a beautifully manicured rear patio and side gardens, ideal for relaxing or entertaining. Enjoy peace of mind in an affluent community with low crime rates and excellent broadband, along with proximity to top-rated schools. With ample parking and a double garage, this home is not just a property—it's a lifestyle waiting to be embraced. Act quickly—homes in this desirable area don’t stay on the market for long!

Property Details

Brochure Descriptions

Image Descriptions

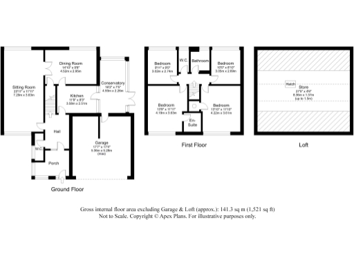
Floorplan Description

Rooms

Textual Property Features

Detected Visual Features

Nearby Schools

Nearest Bars And Restaurants

,,,,}

Nearest General Shops

,,}

Nearest Grocery shops

,,}

Nearest Supermarkets

,,}

Nearest Religious buildings

,,}

Nearest Medical buildings

,,,}

Nearest Airports

}

Nearest Leisure Facilities

,,,,}

Nearest Tourist attractions

,,}

Nearest Train stations

,,,,}

Nearest Bus stations and stops

,,,,}

Nearest Hotels

,,}

Tags

Local Market Stats

Similar Properties

Meta

High Res Images

Compatible Images

Low res Images

Thumbnails

Raw Images

High Res Floorplan Images

Compatible Floorplan Images

Low res Floorplan Images

FloorplanImages Thumbnail

Raw Floorplan Images