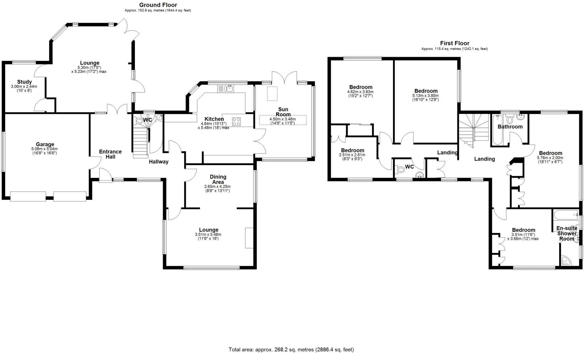
**Standout Features:**
- Elegant detached family home with 2,886 sq. ft of living space.
- Five spacious bedrooms, including a primary suite with en-suite bathroom.
- Expansive kitchen with unique curved worktops and serene garden views.
- Charming sunroom ideal for relaxation or entertaining.
- Four beautifully appointed reception rooms offering versatility.
- Stunning wrap-around gardens with mature trees and vibrant flower beds.
- Private driveway with ample parking.
- Located in a quiet, affluent neighborhood with low crime rates.
**Potential Downsides:**
- Double glazing installed prior to 2002 may need updating.
- Higher council tax rates apply.
Discover a charming sanctuary in this exquisite five-bedroom detached residence, tucked away in one of Ferndown’s most coveted areas. This impressive home boasts an expansive layout, perfect for both family living and sophisticated entertaining. The heart of the house showcases a unique kitchen flowing into a delightful sunroom, enhancing your indoor-outdoor living experience while soaking in the picturesque garden views.
The generous wrap-around gardens inspire peace and privacy, set amongst lush greenery ideal for family gatherings or serene moments of solitude. With four ample double bedrooms plus a versatile room that can easily adapt to your family’s needs, this residence is thoughtfully designed for comfort and practicality.
Located just a short drive from Ferndown Town Centre, enjoy the benefits of being close to excellent local amenities, schools, and beautiful outdoor spaces for recreation. This well-appointed property isn't just a home; it’s a lifestyle choice, blending suburban tranquility with easy access to the vibrant community around you. Don't miss your chance to make this exclusive family haven your own!
6 bedroom detached house for sale in Golf Links Road, Ferndown, BH22 — £842,000 • 6 bed • 6 bath • 2300 ft²
4 bedroom detached house for sale in Wimborne Road East, Ferndown, BH22 — £800,000 • 4 bed • 2 bath • 2551 ft²
4 bedroom detached house for sale in Victoria Gardens, Ferndown, BH22 — £525,000 • 4 bed • 1 bath • 1717 ft²
5 bedroom detached house for sale in Golf Links Road, Ferndown, BH22 — £1,750,000 • 5 bed • 5 bath • 5383 ft²
5 bedroom detached house for sale in Pringles Drive, Ferndown, BH22 — £1,395,000 • 5 bed • 4 bath • 4500 ft²
5 bedroom detached house for sale in Juniper Close, Ferndown, BH22 — £700,000 • 5 bed • 2 bath • 2030 ft²


















































































