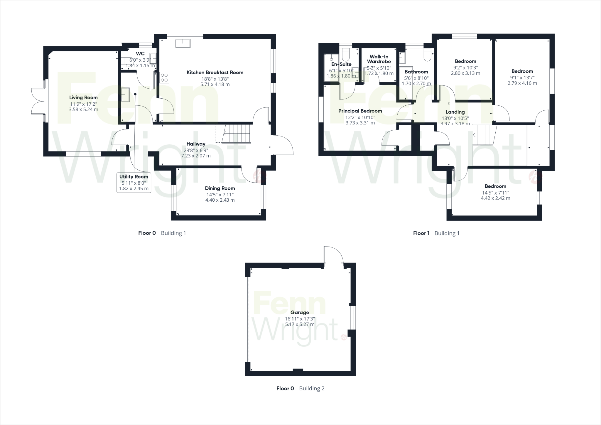
**Standout Features:**
- Modern detached two-story home in a sought-after village.
- Four spacious bedrooms, including a principal suite with en-suite and walk-in wardrobe.
- Detached double garage with electric roller door and off-road parking for 4 cars.
- Bright open-plan kitchen, utility room, and dual aspect dining room.
- Landscaped westerly-facing garden with patio, ideal for family gatherings.
- Chain-free sale – move in with ease!
Nestled in the desirable Long Melford village, this modern detached home combines spacious living with contemporary style. Spanning 1,815 sq ft, the layout features an inviting entrance hall that leads to an open-plan kitchen with utilities, a dual aspect dining room, and a bright living room that opens to a lovely westerly-facing garden—perfect for outdoor entertaining. With four generous bedrooms, including an impressive principal suite, you’ll find both comfort and privacy for the entire family.
The property offers significant off-road parking and a detached double garage, adding to its convenience. While showcasing a stylish design, it remains within easy reach of local amenities, historic sites, and the bustling town of Sudbury. With low crime rates and a strong sense of community, this home is ideal for families and professionals seeking a tranquil lifestyle with urban conveniences nearby.
Please note, being timber-framed may require additional considerations, making this a wise investment opportunity. Don’t miss the chance to own this striking property in a highly coveted area—properties like this don’t stay on the market long!











































































































