Character-filled central home with garden and parking, ideal for first-time buyers.
Chain free three-bedroom mid-terrace within short walk to Glastonbury High Street
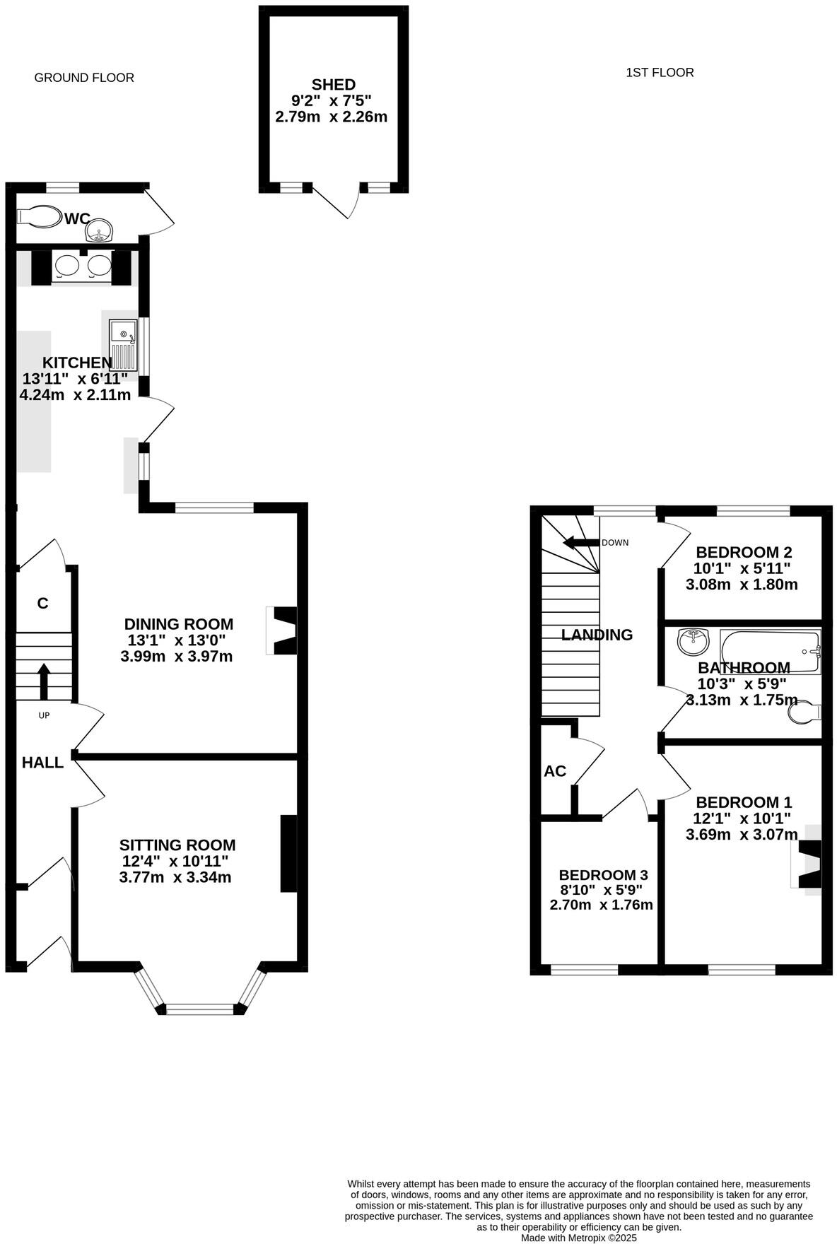
This attractive mid-terrace townhouse sits a short level walk from Glastonbury High Street and is offered chain free — an accessible entry for first-time buyers wanting a town-centre base. The house retains period character: a bay-front sitting room, exposed wooden floors and original fireplaces give immediate charm and warmth.
Practical features include a handmade kitchen with a Belfast sink and a gas-fired Rayburn that also feeds the central heating, plus gated rear access to off-street parking and a covered carport. The enclosed rear garden has a large paved patio, an easy-maintenance planted area and a timber garden room/store — low upkeep for busy households.
The property is compact and will reward updating. Rooms are modest in scale and the interior is presented in a basic, functional condition; modernisation and redecoration are likely for new owners. There is also scope, subject to planning consent, to extend above the kitchen to reconfigure the bathroom and create a larger bedroom or en-suite.
Location pros and cons are material: excellent mobile signal and fast broadband support home-working, and local primary schools and shops are within easy walking distance. However, the wider area shows higher deprivation and reported crime levels above average; buyers should consider this when planning improvements or rental use.
3 bedroom terraced house for sale in Helyar Close, Glastonbury, BA6 — £260,000 • 3 bed • 1 bath • 649 ft²
3 bedroom end of terrace house for sale in Selwood Road, Glastonbury, BA6 — £200,000 • 3 bed • 1 bath • 583 ft²
3 bedroom terraced house for sale in Leg of Mutton Road, Glastonbury, BA6 — £240,000 • 3 bed • 1 bath • 940 ft²
4 bedroom terraced house for sale in Chilkwell Street, Glastonbury, BA6 — £345,000 • 4 bed • 2 bath • 1051 ft²
4 bedroom end of terrace house for sale in Norbins Road, Glastonbury, BA6 — £350,000 • 4 bed • 1 bath • 1523 ft²
3 bedroom semi-detached house for sale in Rowley Road, Glastonbury, BA6 — £325,000 • 3 bed • 1 bath • 1062 ft²






































































