1.06 acres with approved plans for a 7,000 sq ft country residence aimed at experienced buyers.
- Circa 1.06 acre plot with barn and countryside privacy
- Planning permission granted 2 Sep 2025 (TM/24/01218/PA)
- Proposed dwelling approx. 7,000 sq ft (buyer to verify)
- Room for landscaping, parking/garaging, subject to consents
- Excellent mobile signal and fast broadband available
- No flood risk recorded for the site
- Tenure unknown — purchasers must confirm title
- Requires substantial conversion works and capital outlay
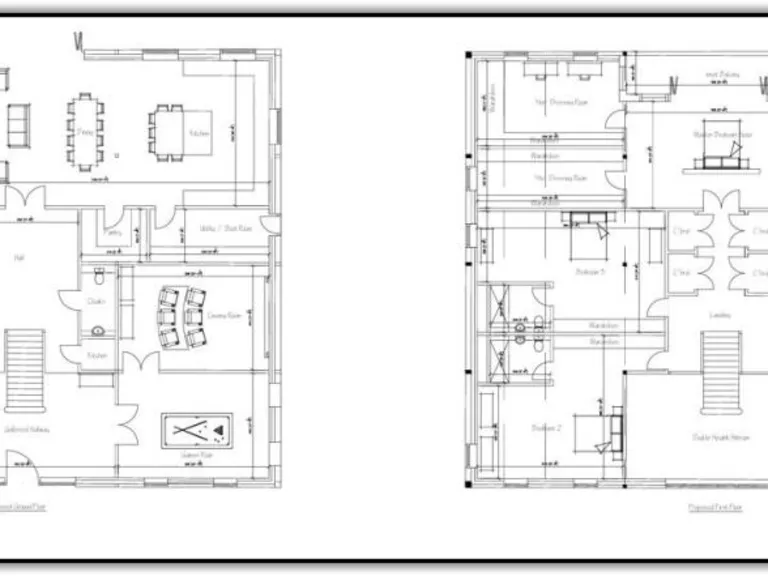
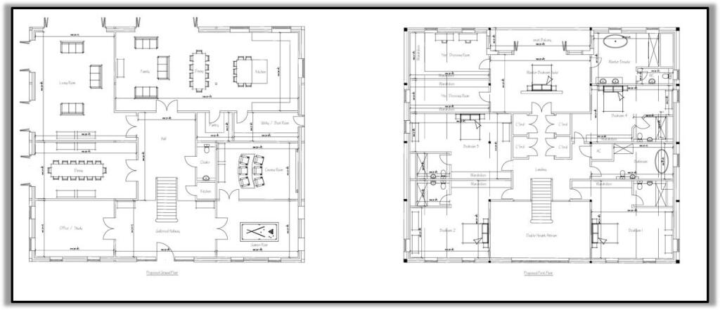
A rare, large-plot conversion opportunity just north of Kemsing Road. The site extends to about 1.06 acres and benefits from planning permission (ref TM/24/01218/PA) granted 2 September 2025 for conversion of the existing agricultural barn into a single residential dwelling of approximately 7,000 sq ft. The setting is rural and secluded, with room for landscaping, parking/garaging and amenity space subject to any further consents.
This sale suits a buyer who can manage a substantial conversion or a developer looking to deliver a high-value country residence. Services, build costs and final layouts should be confirmed by purchasers; the permission and CGI materials are illustrative and buyers must verify all technical and statutory details with the Local Planning Authority. Tenure is not specified and should be checked prior to offer.
Practical advantages include no flood risk, excellent mobile signal and fast broadband — helpful for modern country living or rental marketing. The plot’s scale and barn footprint provide scope for flexible internal arrangement across the granted 7,000 sq ft proposal. Local schooling is strong and the village location provides rural appeal while remaining in the Sevenoaks district.
Notable drawbacks are material: the site requires full conversion works and likely significant capital outlay to realise the permitted dwelling. Crime data for the immediate area is recorded as high, which should be investigated. All measurements and plot figures are indicative and prospective purchasers should verify boundaries, services and the planning consent details independently.
4 bedroom barn conversion for sale in Postern Lane, Tonbridge, Kent, TN11 — £435,000 • 4 bed • 2 bath
3 bedroom barn conversion for sale in Chickenden Lane, TN12 — £255,000 • 3 bed • 1 bath • 2368 ft²
5 bedroom detached house for sale in Ide Hill, Sevenoaks, Kent, TN14 — £1,650,000 • 5 bed • 4 bath • 5233 ft²
5 bedroom detached house for sale in Knowle Road, Brenchley, TN12 — £750,000 • 5 bed • 3 bath • 3500 ft²
Land for sale in Bankside, Goudhurst Road, Cranbrook, Kent. TN17 2PZ, TN17 — £950,000 • 4 bed • 5 bath • 4700 ft²
3 bedroom barn conversion for sale in Hawkbrand House, Knowle Road, TN12 — £325,000 • 3 bed • 2 bath • 1600 ft²


























