TN16 1DG - 2 bedroom end of terrace house for sale in Watermill Close,…

View on Property Piper

2 bedroom end of terrace house for sale in Watermill Close, Brasted, Westerham, TN16

Summary - 2 Watermill Close, Brasted, WESTERHAM TN16 1DG

2 bed 2 bath End of Terrace

**Standout Features:**
- Two spacious double bedrooms with en-suite bath and shower rooms
- Open plan living room/dining area/kitchen for seamless living
- Pretty rear garden with a charming summer house
- Private garage and driveway for convenient parking
- Located in the picturesque village of Brasted, TN16
- High specification finish throughout, including plantation shutters
- Excellent local amenities, including schools and healthcare
- Low crime rate in a self-sufficient, affluent area

This beautifully presented end-of-terrace home in the idyllic village of Brasted offers a perfect blend of modern luxury and classic village charm. With two generous double bedrooms featuring en-suites, this property is designed for comfort and functionality. An inviting open plan living room, dining area, and kitchen create a warm and welcoming atmosphere, ideal for family gatherings or entertaining friends.

Step outside to discover a private rear garden complete with a quaint summer house—an excellent spot for relaxation or creative pursuits. Additional amenities include a garage and private driveway for ample parking.

Located in a tranquil setting with excellent access to local facilities—including top-rated schools and healthcare—this home is perfect for families or those looking for a peaceful retreat. Don't miss out on this exclusive opportunity to own a slice of countryside life enhanced by modern conveniences; properties like this don't stay on the market long!

Property Details

Brochure Descriptions

Image Descriptions

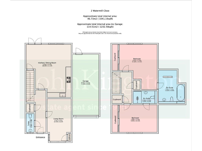
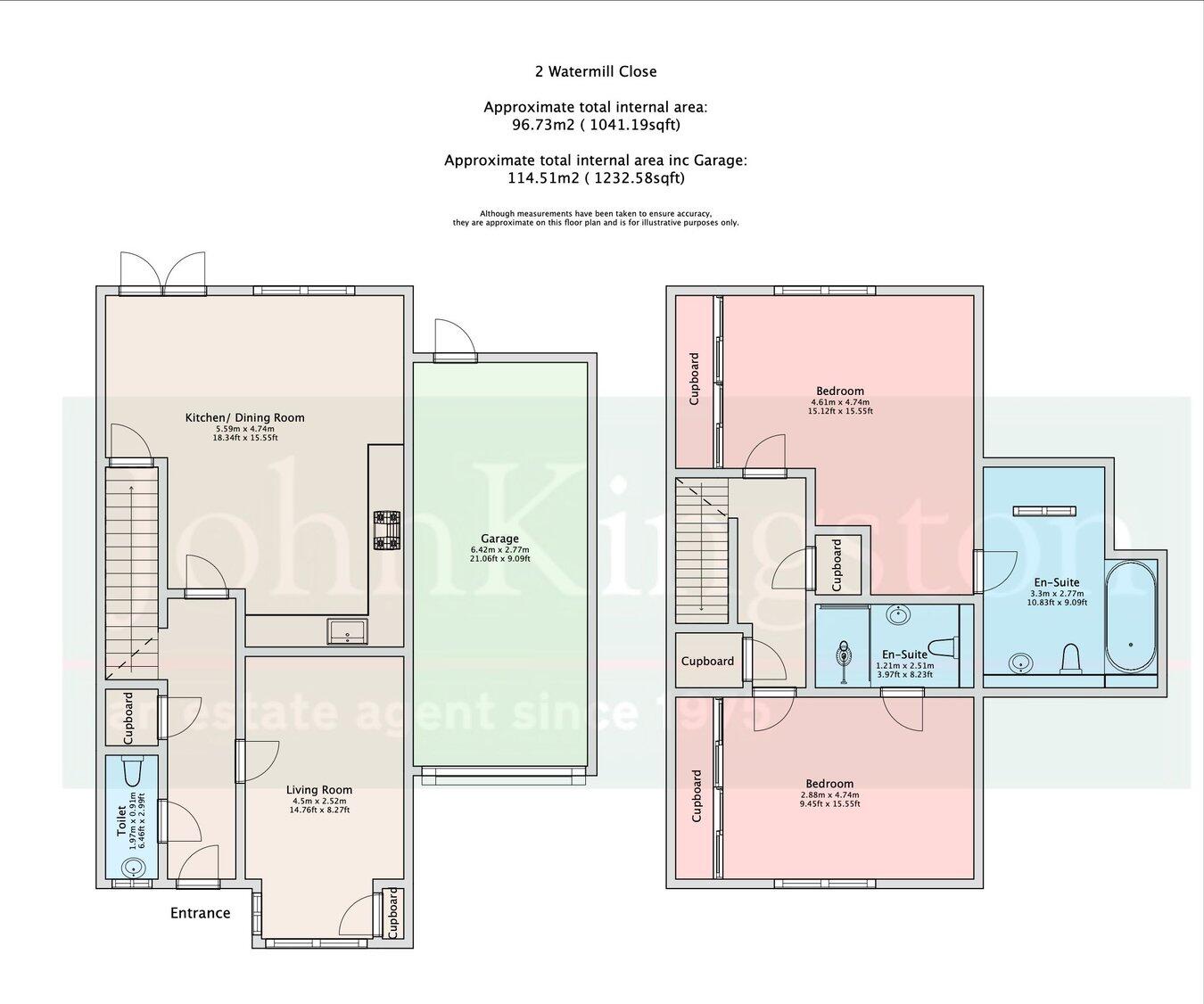
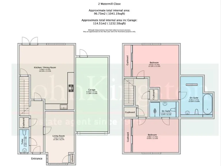
Floorplan Description

Rooms

Textual Property Features

Detected Visual Features

EPC Details

Nearby Schools

Nearest Bars And Restaurants

,,,,}

Nearest General Shops

,,}

Nearest Grocery shops

,,}

Nearest Supermarkets

,,}

Nearest Religious buildings

,,}

Nearest Medical buildings

,,,}

Nearest Airports

}

Nearest Leisure Facilities

,,,,}

Nearest Tourist attractions

,,}

Nearest Train stations

,,,,}

Nearest Bus stations and stops

,,,,}

Nearest Hotels

,,}

Tags

Local Market Stats

Meta

High Res Images

Compatible Images

Low res Images

Thumbnails

Raw Images

High Res Floorplan Images

Compatible Floorplan Images

Low res Floorplan Images

FloorplanImages Thumbnail

Raw Floorplan Images