Move-in ready apartment with striking views and low-maintenance living.
Top-floor apartment with panoramic city and North Sea views
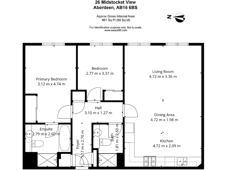
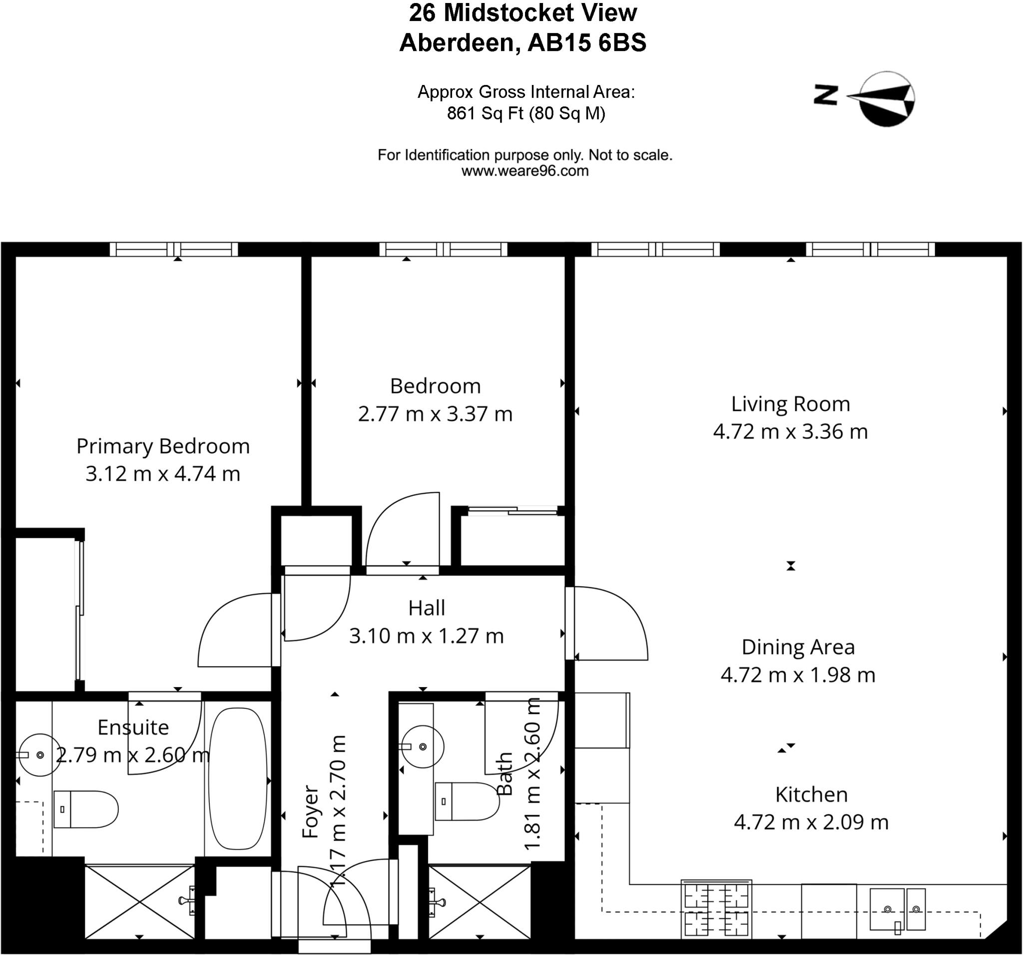
This top-floor two-bedroom apartment sits in a modern residential development and is offered fully furnished, ready to move into. Floor-to-ceiling windows and high ceilings create a bright, airy open-plan living space with uninterrupted views across the city and out to the North Sea. The modern kitchen has integrated appliances and the principal bedroom includes an en-suite for added convenience.
Practical features include gas central heating, double glazing, secure entry, lift access and residential parking. The block is well maintained with tidy communal grounds and easy access to the Aberdeen Ring Road, making commuting straightforward to Aberdeen Royal Infirmary, Woodhill House, Kingswells and Westhill.
Notable drawbacks are factual: there is no private garden (communal grounds only), the wider area records high levels of deprivation which may influence services and long-term demand, and the property’s tenure is not specified. The apartment is average-sized for the area (approximately 861 sq ft) and is best suited to first-time buyers or professionals seeking a low-maintenance home; it also offers straightforward lettings potential for investors who accept the location factors.
2 bedroom apartment for sale in 195 Links Road, Queen's Links, Aberdeen, AB24 5EY, AB24 — £135,000 • 2 bed • 2 bath • 861 ft²
2 bedroom flat for sale in Albert Den, Aberdeen, AB25 — £165,000 • 2 bed • 2 bath • 861 ft²
1 bedroom apartment for sale in Flat 46, Aspire Grove, 36 Claremont Street, Aberdeen, AB10 6RA, AB10 — £145,000 • 1 bed • 1 bath • 657 ft²
2 bedroom apartment for sale in Cornhill Road,
Aberdeen,
AB25 — £179,995 • 2 bed • 1 bath • 651 ft²
2 bedroom apartment for sale in Cornhill Road,
Aberdeen,
AB25 — £272,995 • 2 bed • 1 bath • 1022 ft²
2 bedroom apartment for sale in Ardarroch Close, Aberdeen, AB24 — £115,000 • 2 bed • 1 bath • 657 ft²


































































































