Central Alnwick location with Castle views and private courtyard garden.
Grade II listed Georgian townhouse with original sash windows and shutters
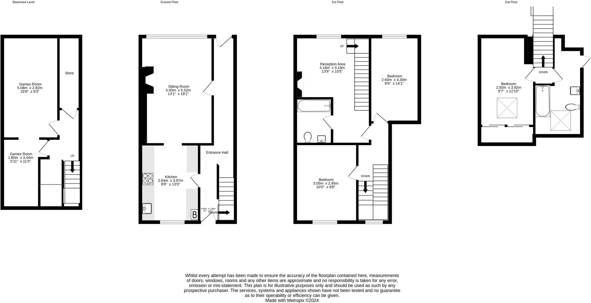
A beautifully refurbished Grade II listed townhouse in the heart of Alnwick, offering classic Georgian character with elevated views towards Alnwick Castle. The three-bedroom home spans four storeys including a versatile basement games room and an attractive private courtyard — a rare town-centre opportunity ideal as a principal residence or a commercial holiday let.
The interior balances period detail and contemporary fittings: original sash windows with shutters, exposed stone and brick, high ceilings and period fireplaces alongside a stylish galley kitchen with marble worktops and integrated appliances. Recent reconfiguration and a newly created first-floor bathroom deliver comfortable family living while retaining strong rental appeal.
Practical points to note: the property is Grade II listed, which will restrict some alterations and can complicate consent for changes. The plot and garden are small, there is no indication of off-street parking, and the EPC rating is D. A dormer could be possible (neighbour has one) but would require normal planning and listed-building consents.
Chain-free freehold ownership, excellent broadband and mobile signal, and a central location close to shops, cafés and the Castle make this an appealing, low-maintenance town property for buyers seeking character, investment potential, or a holiday-let income stream.
4 bedroom terraced house for sale in Bailiffgate, Alnwick, NE66 — £385,000 • 4 bed • 3 bath • 680 ft²
5 bedroom character property for sale in Clayport Street, Alnwick, Northumberland, NE66 — £795,000 • 5 bed • 5 bath • 3850 ft²
3 bedroom terraced house for sale in Percy Terrace, Alnwick, Northumberland, NE66 — £380,000 • 3 bed • 1 bath • 623 ft²
Guest house for sale in Castle View B & B, 1b Bailiffgate, Alnwick, Northumberland, NE66 — £385,000 • 1 bed • 1 bath • 559 ft²
Maisonette for sale in 22 D-E Fenkle Street, Alnwick, Northumberland, NE66 — £180,000 • 1 bed • 1 bath • 1267 ft²
2 bedroom terraced house for sale in Narrowgate, Alnwick, Northumberland, NE66 — £165,000 • 2 bed • 1 bath • 772 ft²






















































































