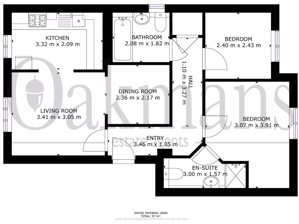
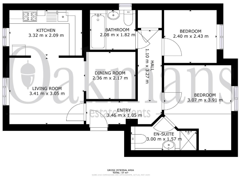
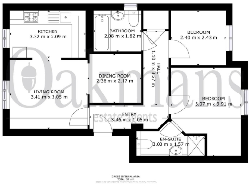
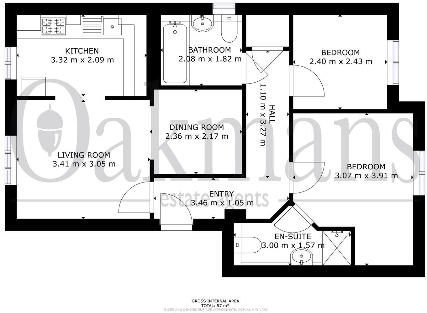
Compact, contemporary flat with parking and long lease ideal for new buyers.
Two double bedrooms including master with ensuite
Open-plan kitchen and living area, good natural light
Allocated off-street parking space included
Long lease: 138 years remaining
Ground rent £180 per year (small)
Overall size is small: 613 sq ft
Area classified as deprived; local crime above average
Council tax band unconfirmed — verify before purchase
This modern second-floor apartment offers a practical two-bedroom layout suitable for first-time buyers and investors. The open-plan kitchen and living area creates a flexible social space, while the master bedroom’s ensuite adds everyday convenience. An allocated off-street parking space is included.
The property has a long lease (138 years remaining) and a modest ground rent (£180), reducing short-term ownership risks. Local transport links and several well-rated primary and secondary schools are nearby, appealing to commuters and families starting out.
There are some important drawbacks to note: the development sits in a generally deprived area with above-average local crime, and the overall property footprint is small (613 sq ft). Broadband speeds are average. Council tax banding is not confirmed and should be checked during purchase.
Overall this apartment represents a low-entry option into Birmingham property with clear practical benefits and transparent upkeep considerations. Buyers seeking a compact, modern home or a straightforward rental investment will find the essentials in place, but should factor local area issues into their decision.
2 bedroom apartment for sale in St. Francis Drive, Birmingham, West Midlands, B30 — £150,000 • 2 bed • 1 bath • 511 ft²
2 bedroom apartment for sale in Middlepark Drive, Northfield, Birmingham, West Midlands, B31 — £165,000 • 2 bed • 2 bath • 549 ft²
2 bedroom apartment for sale in Balmoral Way, Birmingham, B14 — £150,000 • 2 bed • 1 bath • 1077 ft²
2 bedroom apartment for sale in Sandringham Road, Yardley Wood, Birmingham, B14 — £155,000 • 2 bed • 2 bath • 453 ft²
2 bedroom apartment for sale in Woodbrooke Grove, Northfield, Birmingham, B31 — £170,000 • 2 bed • 2 bath • 559 ft²
2 bedroom apartment for sale in Mason Way, Birmingham, B15 — £240,000 • 2 bed • 2 bath






















































































