Spacious historic home with conversion potential beside Brecon Golf Course.
Grade II listed detached house with preserved character features
Open-plan kitchen/dining/living room with bespoke fittings and wood stove
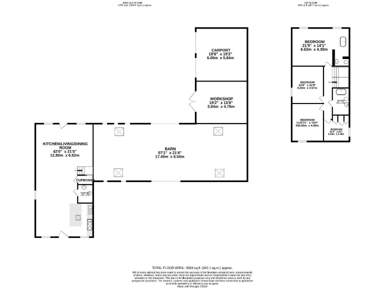
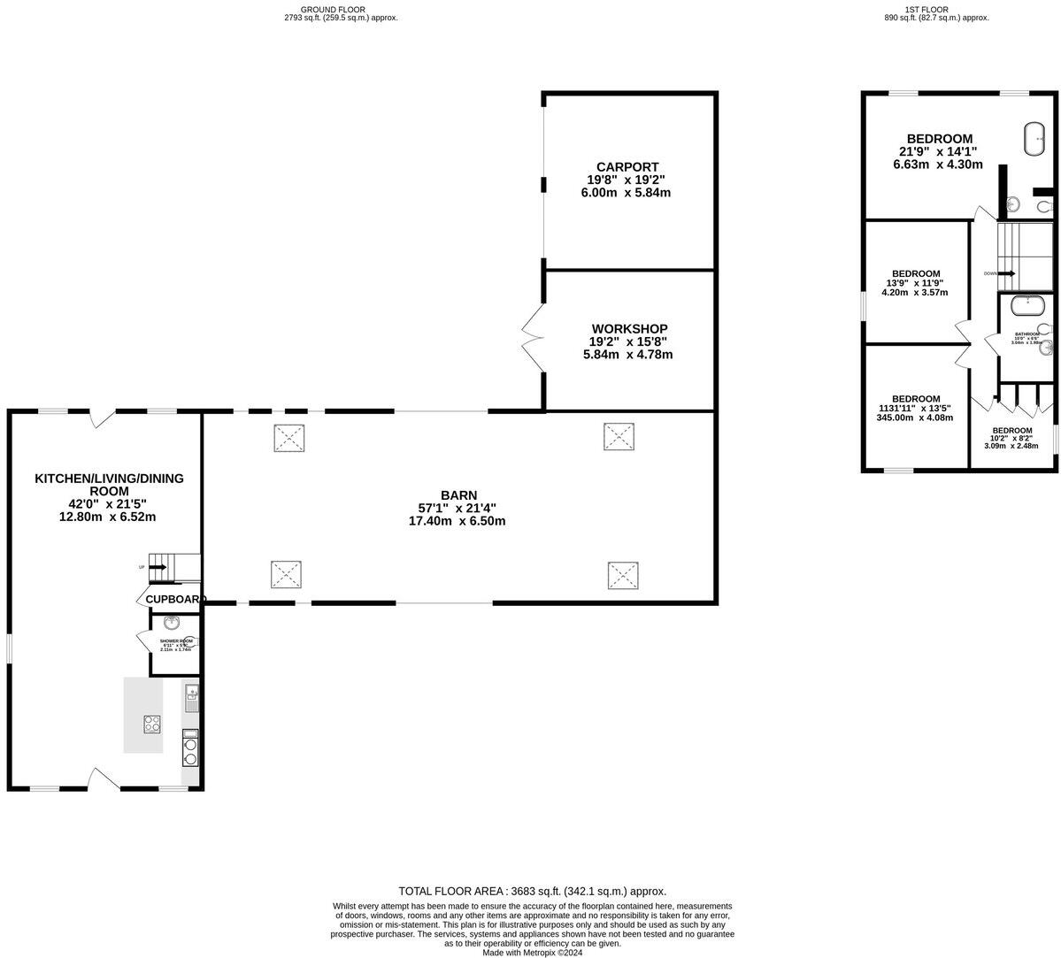
Large unmodernised barn (1,250 sq ft) with planning consent for conversion
Generous plot (~0.6 acres), private lawns, carport and ample parking
LPG central heating and private bio-disk drainage (not mains systems)
Slow broadband speeds despite excellent mobile signal
Council Tax band G — relatively high running cost
Area records high deprivation; listed status may restrict alterations
This Grade II listed detached house on about 0.6 acres combines preserved period character with a high-standard recent renovation, making it a comfortable family home with strong visual appeal. The open-plan kitchen/dining/living room, bespoke kitchen with granite worktops and an LPG AGA, wood-burning stove and exposed beams create an inviting, sociable ground floor. Bedrooms and bathrooms are well appointed, including a master en-suite with a roll-top bath. A large, unmodernised barn (1,250 sq ft) adjoins the house and already has planning consent for conversion—an excellent chance to add substantial living space, a guest suite or holiday income. The plot includes generous lawns, private parking, a carport and a powered workshop. Important practical points: the house is Grade II listed, which will restrict some alterations and may complicate future works. Heating runs on LPG and drainage is via a private bio-disk system; broadband speeds are slow. Council tax is high (band G) and the wider area records high deprivation indicators. These factual issues should be weighed against the property’s charm, size and conversion potential. Located on the western edge of Brecon beside the golf course and within the Brecon Beacons National Park, the house offers scenic surroundings while remaining within easy reach of town amenities, schools and road links to Cardiff, Swansea and Hereford.
4 bedroom end of terrace house for sale in Cross Yard, Brecon, Powys, LD3 — £450,000 • 4 bed • 2 bath • 1410 ft²
4 bedroom link detached house for sale in Cradoc Road, Brecon, LD3 — £550,000 • 4 bed • 4 bath • 2562 ft²
4 bedroom detached house for sale in Cantref, Brecon, Powys, LD3 — £825,000 • 4 bed • 4 bath • 2659 ft²
3 bedroom detached house for sale in Cathedine, Brecon, LD3 — £500,000 • 3 bed • 2 bath • 2076 ft²
4 bedroom detached house for sale in Llanfihangel-Nant-Bran, Brecon, LD3 — £795,000 • 4 bed • 2 bath • 1718 ft²
4 bedroom semi-detached house for sale in Pencelli, Brecon, Powys, LD3 — £825,000 • 4 bed • 3 bath • 2261 ft²










































































































































