Commuter-friendly location with modern upgrades and generous outdoor space.
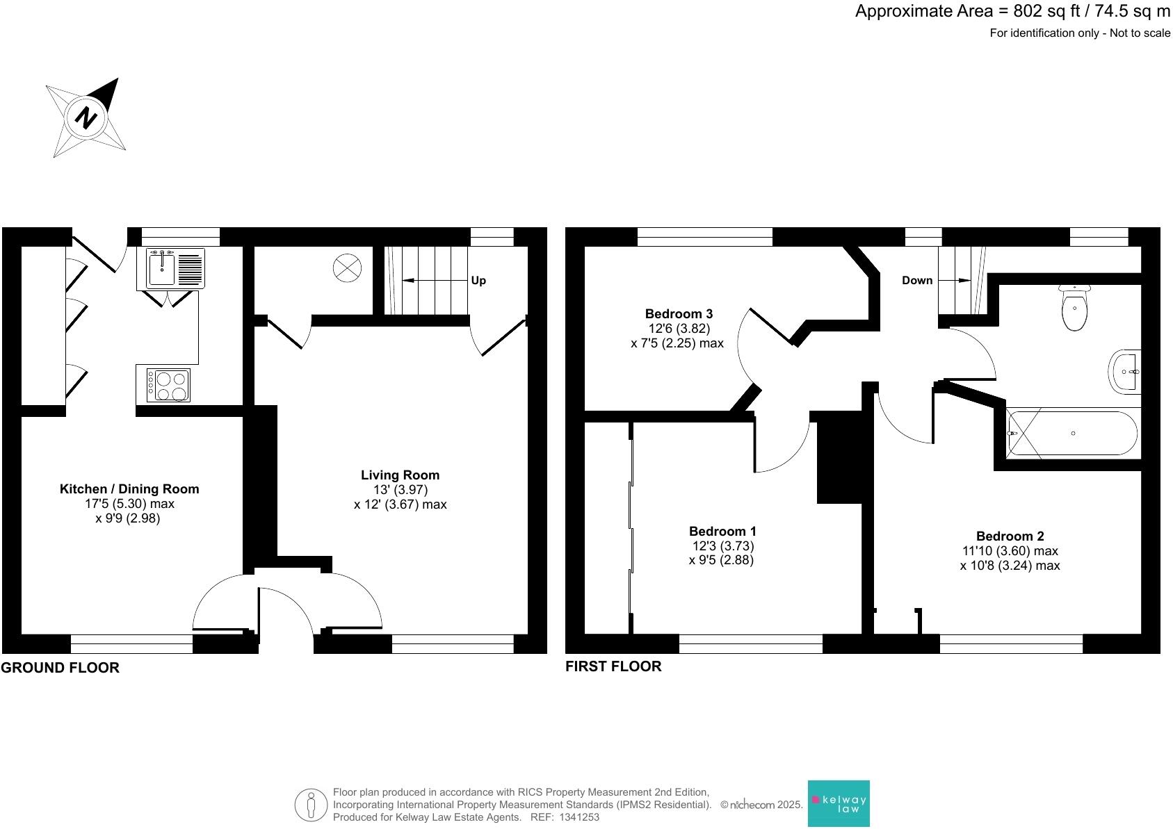
Three bedrooms with character fireplace in the sitting room
Re-fitted kitchen and dining area with integrated appliances
Re-fitted family bathroom with shower over bath
Driveway parking for two vehicles
Large rear garden with patio and shed
Compact internal size — circa 802 sq ft (limited living space)
Single bathroom may be restrictive for larger families
Motivated seller; likely room for negotiation
This compact three-bedroom home sits quietly near Haslemere High Street, offering easy access to shops, restaurants and the main line station. The owners have recently upgraded the kitchen and bathroom, so the property presents as move-in ready with modern fixtures and double glazing installed since 2002.
Internally the house is well laid out for its size (approximately 802 sq ft). The sitting room features a stone-surround fireplace for character, while the kitchen/dining room includes integrated appliances and contemporary worktops. A large rear garden and driveway parking for two vehicles add practical outdoor space and kerb appeal.
Practical considerations are straightforward and should be noted: the house is relatively small for a three-bedroom (about 802 sq ft) and has a single family bathroom, which may feel limiting for busy households. The property is an end-terrace constructed mid-20th century and benefits from mains gas central heating and filled cavity walls.
This house will suit buyers seeking a town-centre location with good commuter links and nearby schools — particularly first-time buyers or growing families who prioritise location and a ready-to-live-in home. The seller is motivated, so there may be room to move on price, but any buyer should check council tax banding and confirm tenure details already shown as Freehold.
3 bedroom terraced house for sale in Copse Road, Haslemere, GU27 — £520,000 • 3 bed • 1 bath • 972 ft²
3 bedroom terraced house for sale in George Denyer Close, Haslemere, Surrey, GU27 — £490,000 • 3 bed • 1 bath • 1086 ft²
3 bedroom end of terrace house for sale in Trout Road, Haslemere, Surrey, GU27 — £425,000 • 3 bed • 1 bath • 773 ft²
3 bedroom detached house for sale in Copse Road, Haslemere, West Sussex, GU27 — £595,000 • 3 bed • 2 bath • 1134 ft²
3 bedroom terraced house for sale in Oaklands, Haslemere, Surrey, GU27 — £450,000 • 3 bed • 1 bath • 849 ft²
3 bedroom end of terrace house for sale in Church Road, Haslemere, GU27 — £685,000 • 3 bed • 2 bath • 1140 ft²






















































