IP4 4NG - 2 bedroom end of terrace house for sale in Schreiber Road,…

View on Property Piper

2 bedroom end of terrace house for sale in Schreiber Road, Ipswich, IP4

Summary - 34 SCHREIBER ROAD IPSWICH IP4 4NG

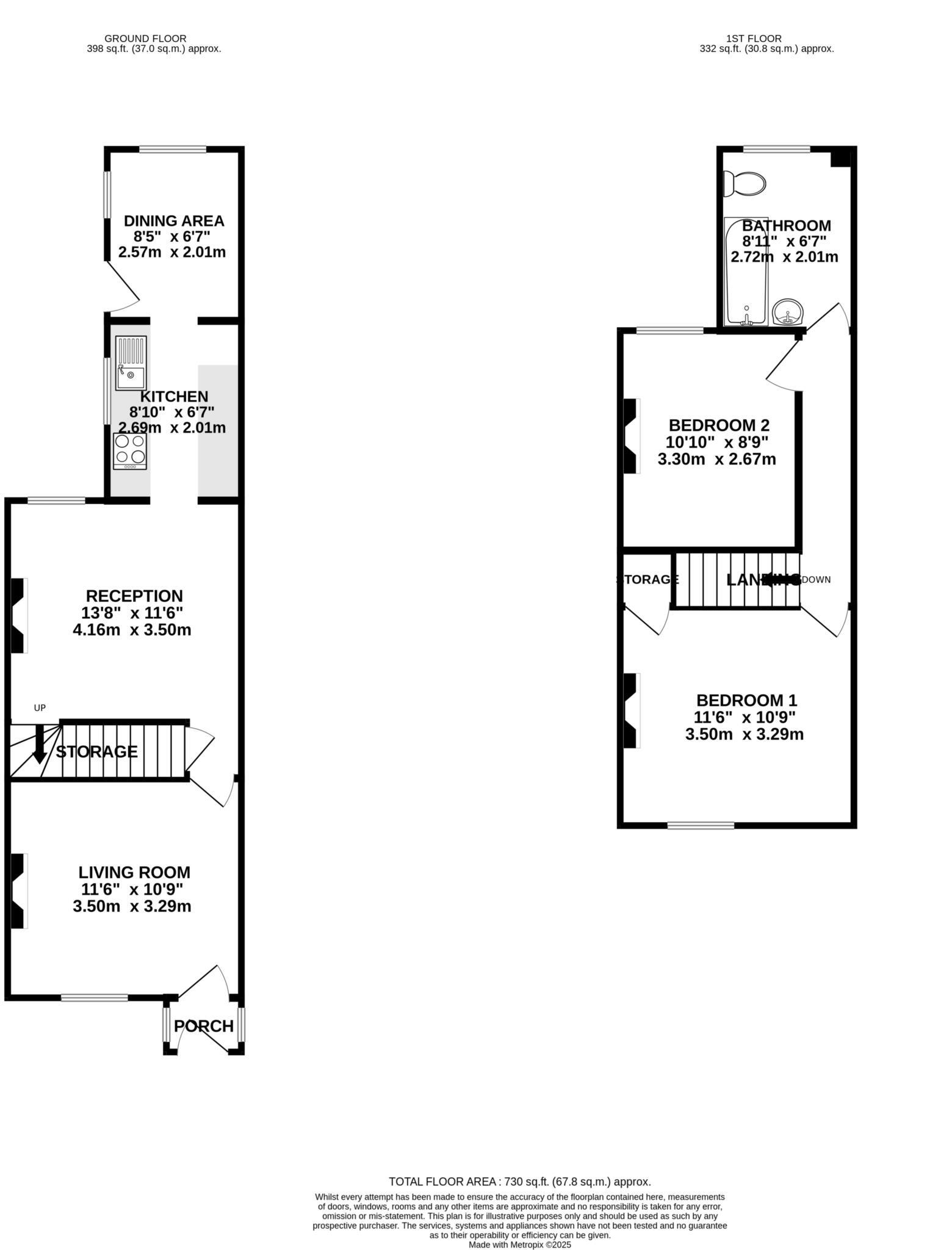
2 bed 1 bath End of Terrace

Ready-to-live two-bedroom Victorian end terrace close to Ipswich town and hospital.
Newly renovated throughout with modern kitchen and bathroom
A well-presented two-bedroom end terrace in East Ipswich, recently renovated and ready to move into. The house combines period character—fire surrounds and coving—with modern comforts: gas central heating, double glazing and an extended kitchen/diner overlooking a neat rear garden. The property feels warm and practical, with good storage and a large powered shed at the garden end.

Location is a genuine strength: short walk to Ipswich town centre, the waterfront, university and regular buses to Ipswich Hospital. Several well-regarded primary and secondary schools are nearby, making this a sensible purchase for a first-time buyer or small family wanting close amenities and city convenience.

Practical points to note: the plot is small and parking is unrestricted on-street only—there is no off-street parking. The house is solid brick (as built) and assumed to lack wall insulation, which could mean higher heating costs unless upgraded. Council tax is inexpensive and there is no flooding risk.

Overall this property offers immediate, comfortable living space with scope for incremental energy improvements and garden enhancement. It is well suited to buyers seeking a centrally located starter home with character and low upfront maintenance work required thanks to recent renovation.

Property Details

Image Descriptions

Rooms

Textual Property Features

Target Audience

AI Tags

Detected Visual Features

EPC Details

Nearby Schools

Nearest Bars And Restaurants

,,,,}

Nearest General Shops

,,}

Nearest Grocery shops

,,}

Nearest Supermarkets

,,}

Nearest Religious buildings

,,}

Nearest Medical buildings

,,,}

Nearest Leisure Facilities

,,,,}

Nearest Tourist attractions

,,}

Nearest Train stations

,,,,}

Nearest Bus stations and stops

,,,,}

Nearest Hotels

,,}

Tags

Local Market Stats

AirBnB Data

Similar Properties

Meta

High Res Images

Compatible Images

Low res Images

Thumbnails

Raw Images

High Res Floorplan Images

Compatible Floorplan Images

Low res Floorplan Images

FloorplanImages Thumbnail

Raw Floorplan Images