Ground-level, low-maintenance flat close to town and heath for over-60s.
No chain — ready for straightforward completion
Exclusively for over-60s in popular Beechwood development
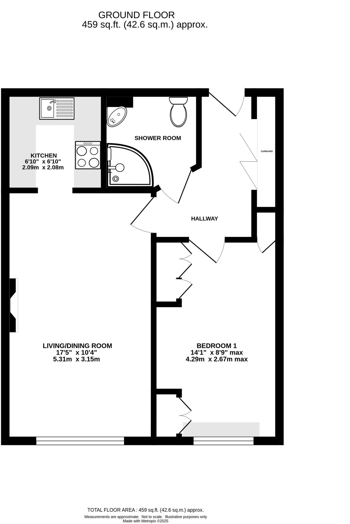
Ground-floor apartment with spacious living/dining room
One double bedroom and generous shower room
Communal lounge, laundry and guest suite for visitors
Leasehold, approx. 83 years remaining; ground rent £70
Electric room heaters; no central heating system
Kitchen dated (1980s) and may require updating
This ground-floor retirement apartment in the Beechwood development offers approachable later-living close to Knutsford town centre and the Heath. A spacious living/dining room looks toward the well-kept communal gardens, creating an airy, calm main space ideal for daytime relaxation or entertaining visiting family.
The layout suits a single occupant or couple: one double bedroom, a generous shower room and a compact but serviceable kitchen. Shared facilities include a communal lounge, laundry room and an en-suite guest suite for visitors. The property is being offered chain-free and has a limited-time reduced price, making it straightforward to move in.
Important practical points: the flat is leasehold with c.83 years remaining and a modest ground rent of £70. Heating is electric via room heaters rather than a central system, and the kitchen shows dated 1980s fittings so some updating may be desired. The building dates from the 1980s and benefits from traditional Tudor-style character and double glazing.
This apartment will appeal to over-60s seeking easy, low‑maintenance living within walking distance of shops, healthcare and leisure facilities. Buyers should factor in the lease term and planned updates to heating and kitchen when considering long-term ownership.
1 bedroom retirement property for sale in Beechwood, Tabley Road, Knutsford, WA16 — £95,000 • 1 bed • 1 bath • 444 ft²
1 bedroom flat for sale in Tabley Road, Knutsford, Cheshire, WA16 — £100,000 • 1 bed • 1 bath • 482 ft²
1 bedroom flat for sale in Tabley Road, Knutsford, Cheshire, WA16 — £110,000 • 1 bed • 1 bath • 482 ft²
1 bedroom retirement property for sale in Oakwood, Tabley Road, Knutsford, WA16 — £70,000 • 1 bed • 1 bath • 476 ft²
1 bedroom retirement property for sale in Tabley Road, Knutsford, WA16 — £90,000 • 1 bed • 1 bath • 412 ft²
1 bedroom apartment for sale in Beechwood, Tabley Road, Knutsford, WA16 — £79,995 • 1 bed • 1 bath • 466 ft²






















































































