Charming countryside home with flexible studio space and expansive views.
Grade II listed early 18th-century cottage with original inglenook fireplace
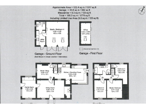
Detached four-bedroom character home with two bathrooms and converted garage studio
Converted garage includes underfloor heating, kitchenette, shower, mezzanine office
South-facing terrace, large landscaped garden and panoramic southern/western views
Located in South Downs National Park; hamlet setting with excellent mobile signal
Very slow broadband; listed status will restrict alterations and may increase costs
Tenure unspecified; buyers should verify before proceed
Plot very large with parking and detached garage
Step back to the early 18th century with The Old Cottage, a Grade II listed character property set in the South Downs National Park. The house combines original features — inglenook fireplace, exposed beams — with extended living space across an average-sized but comfortable 1,779 sq ft layout. The converted double garage provides flexible accommodation: a studio/bedroom with underfloor heating, kitchenette, shower room and mezzanine office.
The principal accommodation includes a cottage-style kitchen/breakfast room with an electric Aga, a bright sitting room and a sunny family room opening onto a south-facing terrace. Four bedrooms and two bathrooms sit across the multi-storey plan, with panoramic southern and western views over large, landscaped grounds and adjoining farmland.
Practical notes for buyers: this is a listed building, so alterations will be restricted and could be costly; tenure is not specified. Broadband speeds are very slow despite excellent mobile signal. The house is in a peaceful hamlet with good access to nearby villages, rail links to London and reputable local schools — an attractive rural family location but one that requires acceptance of listed-property responsibilities.
4 bedroom detached house for sale in Bramdean Cottage, Bramdean, Alresford, SO24 — £1,000,000 • 4 bed • 2 bath • 2905 ft²
4 bedroom detached house for sale in Bramdean, Alresford, SO24 — £950,000 • 4 bed • 3 bath • 1916 ft²
3 bedroom end of terrace house for sale in Church Lane, East Worldham, Alton, Hampshire, GU34 — £550,000 • 3 bed • 1 bath • 1326 ft²
3 bedroom detached house for sale in Rogate, Petersfield, West Sussex, GU31 — £1,650,000 • 3 bed • 3 bath • 3786 ft²
3 bedroom terraced house for sale in Hambledon, Waterlooville, Hampshire, PO7 — £725,000 • 3 bed • 2 bath • 1162 ft²
3 bedroom cottage for sale in Sandy Lane, Petersfield, GU32 — £900,000 • 3 bed • 2 bath • 1933 ft²










































































































