Compact, low-maintenance single-level home with driveway and west-facing garden.
Two bedrooms in a traditional semi-detached bungalow layout
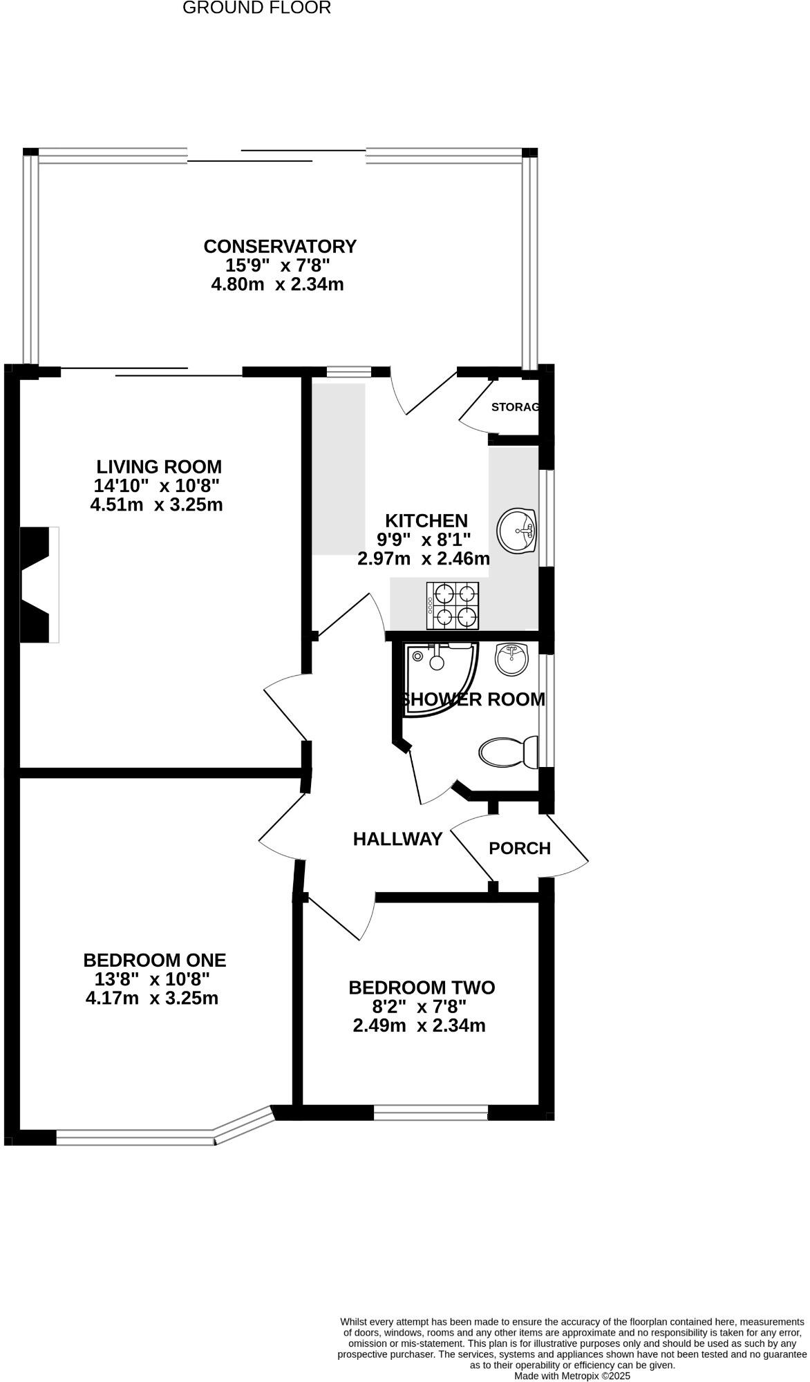
This neatly presented two-bedroom semi-detached bungalow sits in a popular residential pocket of Fareham, within easy reach of the town centre and train station. The layout is traditionally arranged with two front bedrooms, a living room that opens into a double-glazed conservatory, and a fitted kitchen with integrated appliances. The shower room has been refitted and the home benefits from gas central heating and double glazing.
Outside, the property scores for low-maintenance living: a westerly rear garden with decking and artificial turf, a large powered timber shed, and gated side access. Off-road parking is provided on the bungalow’s own driveway that runs alongside the house. These practical features suit anyone downsizing or seeking a compact, easy-care home close to local amenities and transport.
Buyers should note the bungalow’s modest overall size (approximately 566 sq ft) and small plot, which may limit extension potential. The property dates from the mid-20th century and has an EPC rating of C; while presented well, some buyers may wish to update cosmetic or systems details over time. Council Tax is Band C, and there is no local flooding risk.
For a purchaser prioritising single-level living, convenient parking and a low-maintenance garden in a well-connected Fareham location, this bungalow offers clear appeal. It’s a practical, comfortable base with straightforward potential for light updating to personalise the space.
2 bedroom bungalow for sale in Redlands Lane, Fareham, PO14 — £275,000 • 2 bed • 1 bath
2 bedroom bungalow for sale in Coombe Farm Avenue, Fareham, Hampshire, PO16 — £325,000 • 2 bed • 1 bath • 648 ft²
2 bedroom bungalow for sale in Eastfield Avenue, Fareham, PO14 — £310,000 • 2 bed • 1 bath • 382 ft²
2 bedroom bungalow for sale in Dalewood Road, Fareham, Hampshire, PO15 — £375,000 • 2 bed • 1 bath • 865 ft²
2 bedroom detached bungalow for sale in Place House Close, Fareham, PO15 — £435,000 • 2 bed • 1 bath • 765 ft²
1 bedroom semi-detached bungalow for sale in Tudor Court, Fareham, PO14 — £250,000 • 1 bed • 1 bath • 449 ft²


















































