Turnkey fourth-floor flat with parking, balcony and strong transport links for city professionals.
Spacious 966 sq ft fourth-floor apartment with balcony and city views
Newly renovated open-plan living and fully refitted kitchen
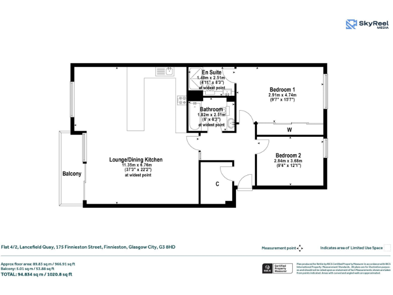
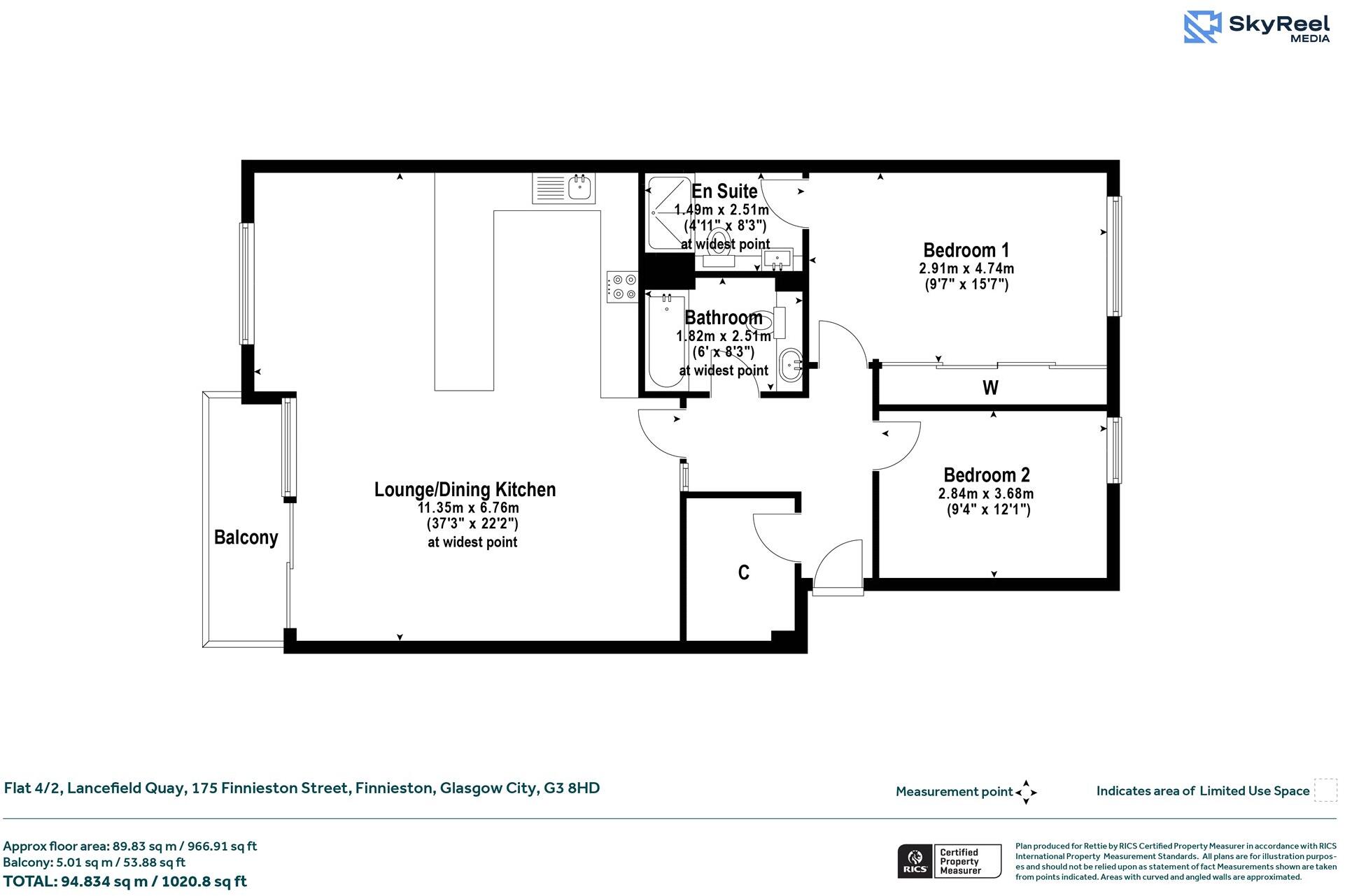
Principal bedroom with fitted wardrobes and en-suite shower room
Separate utility room housing gas combi central heating boiler
Secure allocated off-street parking and gated courtyard access
Lift access, onsite caretaker and secure communal entrances
Remediation works ongoing to secure EWS1; developer Letter of Undertaking
Tenure unspecified; Council Tax Band F (expensive)
Set over 966 sq ft on the fourth floor, this newly renovated two-bedroom flat offers bright, open-plan living with floor-to-ceiling windows and a glass-fronted balcony overlooking Finnieston Street and the Clyde Crane. The kitchen is refitted with integrated appliances and a breakfast peninsula; the principal bedroom includes fitted wardrobes and an en-suite. A separate utility room houses the gas combi boiler. Secure allocated off-street parking, lift access and an on-site caretaker add practical convenience for commuters and city professionals.
The development is well placed between Glasgow city centre and the West End, close to restaurants, bars, transport links, universities and the Scottish Events Campus. Excellent broadband and mobile signal support home working and streaming, while multiple travel options make commuting straightforward. The property is presented in turnkey condition with modern finishes and laminate flooring throughout the main living areas.
Buyers should note that remediation work to achieve a satisfactory EWS1 outcome is underway. The original developer is engaged, a Letter of Undertaking is in place and the building has progressed through the Scottish Government SBA pilot, but further phases of works remain. Tenure details are not provided and council tax sits in Band F, which should be factored into running costs. These points are important for mortgage lenders, investors and buyers requesting purchase packs.
2 bedroom apartment for sale in Lancefield Quay, Finnieston, Glasgow City, G3 — £289,000 • 2 bed • 2 bath • 840 ft²
2 bedroom apartment for sale in 5/1, 171 Finnieston Street, Glasgow, City of Glasgow, G3 8HD, G3 — £215,000 • 2 bed • 2 bath • 861 ft²
2 bedroom flat for sale in 3/1, 505 Stobcross Street, Glasgow, Glasgow City, G3 — £165,000 • 2 bed • 2 bath • 828 ft²
1 bedroom apartment for sale in Lancefield Quay, Glasgow City, G3 — £169,000 • 1 bed • 1 bath • 614 ft²
2 bedroom apartment for sale in Argyle Street, Glasgow City Centre, G2 — £175,000 • 2 bed • 2 bath • 673 ft²
2 bedroom apartment for sale in Lancefield Quay, Finnieston, Glasgow City, G3 — £245,000 • 2 bed • 2 bath • 1353 ft²






































































































































