Chain-free two-bedroom bungalow with garage and easy village access..
Chain free two-bedroom semi-detached bungalow with garage and driveway
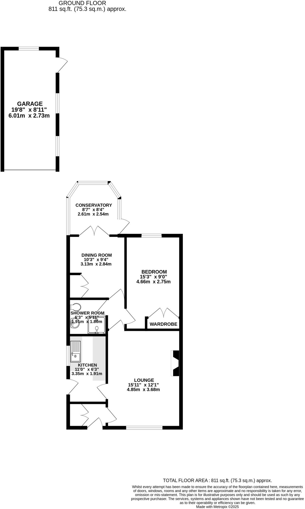
Single-storey layout ideal for downsizers or mobility-conscious buyers
Conservatory off bedroom two provides extra light and garden access
Kitchen and bathroom are compact and may need modernisation
Double glazing present; installation dates unknown
Mains gas central heating (boiler and radiators) and powered garage
Decent plot with private front and rear gardens, low-maintenance lawns
Excellent local amenities, frequent buses and highly regarded schools nearby
Set on a quiet Keyworth street, this chain-free two-bedroom semi-detached bungalow offers single-storey living with a garage, driveway and private front and rear gardens. The layout is traditional and practical: lounge-diner to the front, kitchen with side access, two bedrooms at the rear and a conservatory off bedroom two that opens onto the garden.
The property sits on a decent plot in a very affluent, low-crime area with excellent mobile signal and fast broadband — helpful for home working or streaming. Heating is via mains-gas boiler and radiators; windows are double glazed though installation dates are not specified. Local amenities, bus routes to Nottingham and well-regarded schools are all within easy reach.
Highlights include the attached garage with power, off-street parking and the conservatory that provides garden views and extra light. Practical buyers will appreciate the manageable garden sizes and single-level layout, which suits downsizers or those seeking an accessible home in a village setting.
A clear-headed purchaser should note the property is traditional mid-20th-century construction and will likely benefit from cosmetic updating in areas such as the kitchen and bathroom. The conservatory is small and modern but not a full extension; measurements are compact. Services and fittings have not been tested, and buyers should verify details and carry out their own inspections.
2 bedroom semi-detached bungalow for sale in Beech Avenue, Nottingham, NG12 — £235,000 • 2 bed • 1 bath • 577 ft²
2 bedroom semi-detached bungalow for sale in Elm Close, Keyworth, Nottingham, NG12 — £255,000 • 2 bed • 1 bath • 603 ft²
2 bedroom detached bungalow for sale in Hacienda, Villa Road, Keyworth, NG12 — £350,000 • 2 bed • 1 bath • 987 ft²
2 bedroom bungalow for sale in Brook View Drive, Keyworth, Nottingham, NG12 — £330,000 • 2 bed • 2 bath • 1499 ft²
2 bedroom detached house for sale in Crossdale Drive, Keyworth, Nottingham, NG12 — £220,000 • 2 bed • 1 bath • 783 ft²
2 bedroom detached bungalow for sale in Church Drive, Keyworth, NG12 — £265,000 • 2 bed • 1 bath • 657 ft²






















































































