SE3 8SN - 4 bed spacious victorian townhouse in Craigerne Road, SE3 8…

View on Property Piper

4 bedroom terraced house for sale in Craigerne Road, Blackheath, SE3

Summary - 53 CRAIGERNE ROAD LONDON SE3 8SN

4 bed 4 bath Terraced

Chain-free family home with garden and excellent schools nearby.
- Chain-free freehold Victorian mid-terrace with period features
- Four double bedrooms and four bathrooms across three floors
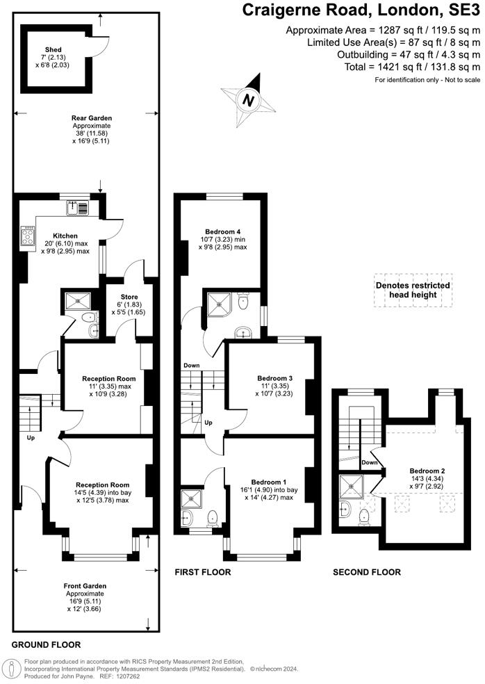
- Approx 1,421 sq ft internal space; two reception rooms
- 30 ft private rear garden; small overall plot
- Requires renovation and modernisation throughout
- Solid brick walls likely lack insulation; potential energy upgrades
- Double glazing installed after 2002; mains gas central heating
- Close to Royal Standard, good schools, fast rail links to city
This spacious four-double-bedroom terraced house on Craigerne Road offers generous family living across three floors, arranged around two reception rooms and a 20-foot kitchen opening onto a private 30-foot rear garden. At about 1,421 sq ft, the layout includes four bathrooms (three en suites) and flexible room proportions suited to family life or home working.

The location is a strong practical selling point: a short walk to the Royal Standard’s shops and cafés, excellent schools nearby (including several rated Outstanding/Good), and fast rail links from Westcombe Park and Blackheath into central London. The property is chain-free and freehold, appealing for buyers seeking a straightforward purchase.

The house does need renovation and modernisation throughout, which presents both a drawback and opportunity. Period features such as sash windows and fireplaces survive, and double glazing has been installed post-2002, but the solid brick walls are likely uninsulated and other upgrades (kitchen, bathrooms, possible redecoration and systems modernisation) will be required. Council Tax Band E and above-average local affluence should be noted in cost planning.

For family buyers wanting space close to schools and transport, this mid-terrace Victorian home offers significant upside: invest in updating and you will gain a roomy, characterful home in a well-connected, sought-after pocket of SE3.

Property Details

Brochure Descriptions

Image Descriptions

Floorplan Description

Rooms

Textual Property Features

Target Audience

AI Tags

Detected Visual Features

EPC Details

Nearby Schools

Nearest Bars And Restaurants

,,,,}

Nearest General Shops

,,}

Nearest Grocery shops

,,}

Nearest Supermarkets

,,}

Nearest Religious buildings

,,}

Nearest Medical buildings

,,,}

Nearest Airports

,,}

Nearest Leisure Facilities

,,,,}

Nearest Tourist attractions

,,}

Nearest Train stations

,,,,}

Nearest Bus stations and stops

,,,,}

Nearest Hotels

,,}

Tags

Local Market Stats

AirBnB Data

Similar Properties

Meta

High Res Images

Compatible Images

Low res Images

Thumbnails

Raw Images

High Res Floorplan Images

Compatible Floorplan Images

Low res Floorplan Images

FloorplanImages Thumbnail

Raw Floorplan Images