Newly renovated two-double home with large landscaped garden and off-street parking.
Two double bedrooms, newly renovated throughout
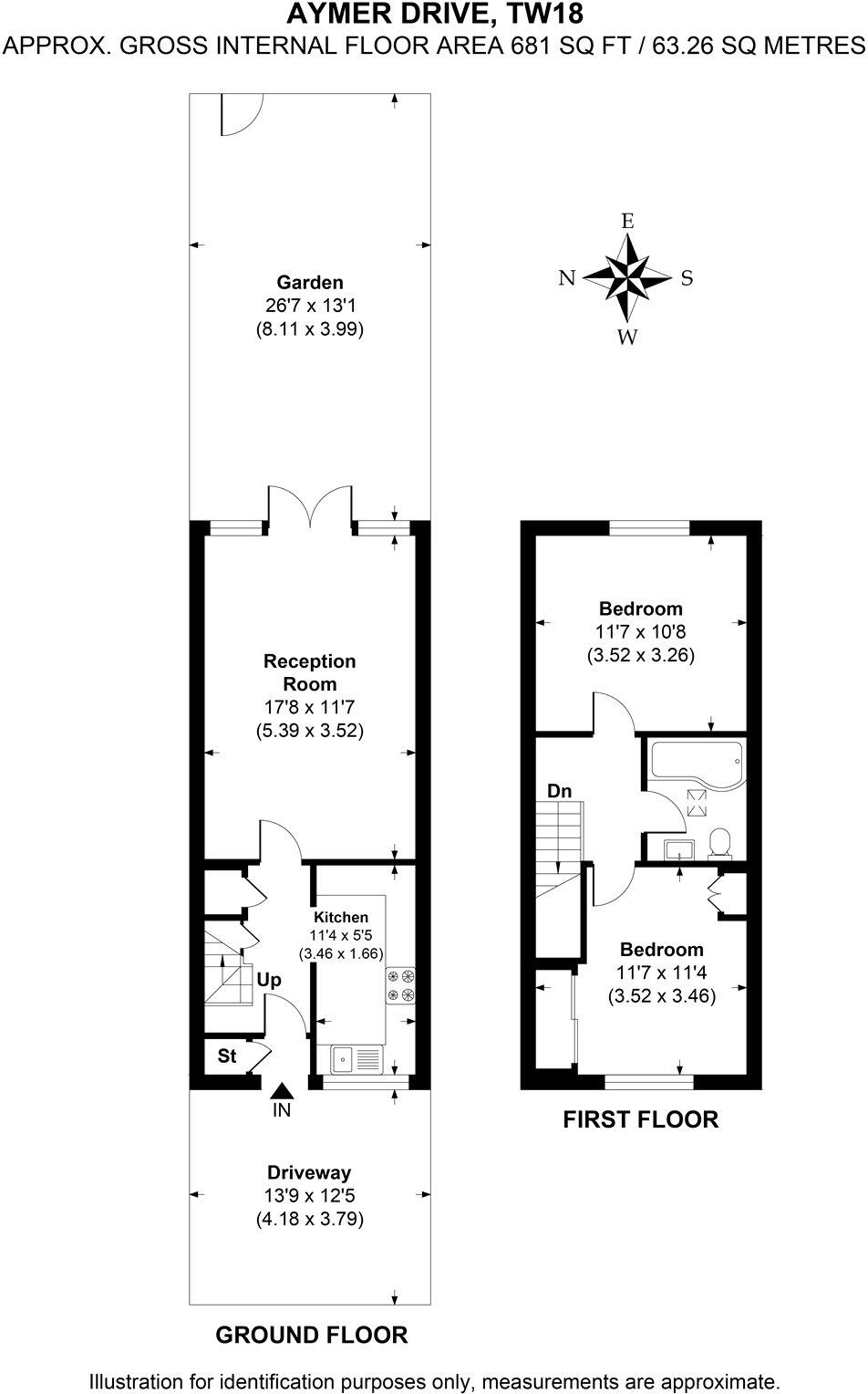
This neatly presented two-double-bedroom mid-terrace offers a ready-to-move-in option for first-time buyers or downsizers seeking modern style on a modest budget. The interior is newly renovated and immaculately decorated, with a refurbished first-floor bathroom, a separate kitchen and two good-sized reception spaces that make the layout flexible for living and working from home.
The property sits in a quiet cul-de-sac in a comfortable suburban pocket of Staines and comes with useful practical features: off-street parking, double glazing (install date unknown), gas central heating via boiler and radiators, and a large landscaped rear garden that’s low-maintenance but generous for the area. The house is freehold and measures about 681 sq ft—an average-sized home with efficient room flow.
Buyers should note the material drawbacks alongside the positives. The address falls into a high flooding risk zone, which will affect insurance and may require ongoing mitigation. The plot is small and the house is a mid-terrace, so outdoor privacy and expansion potential are limited. Council tax banding is not provided. Constructed in the early 1990s, the property appears well maintained but buyers who require exact dates for glazing, services or warranties should verify these details.
Local conveniences are strong: good primary and secondary schools nearby, fast broadband, low local crime and easy access to buses and leisure facilities. For purchasers who prioritise move-in readiness, off-street parking and a landscaped garden within comfortable suburbia, this house represents a rare combination at this price point—provided the flood risk and limited plot size have been considered.
3 bedroom end of terrace house for sale in Edgell Road, Staines, Surrey, TW18 — £485,000 • 3 bed • 1 bath • 883 ft²
2 bedroom end of terrace house for sale in Hithermoor Road, Staines-upon-Thames, Surrey, TW19 — £400,000 • 2 bed • 1 bath • 808 ft²
2 bedroom detached house for sale in Claremont Road, Staines-upon-Thames, Surrey, TW18 — £485,000 • 2 bed • 1 bath • 958 ft²
2 bedroom terraced house for sale in Stanwell New Road, Staines-upon-Thames, TW18 — £395,000 • 2 bed • 1 bath • 877 ft²
2 bedroom terraced house for sale in Kenilworth Gardens, Staines-upon-Thames, TW18 — £430,000 • 2 bed • 1 bath • 706 ft²
4 bedroom detached house for sale in Sykes Drive, Staines-upon-Thames, Surrey, TW18 — £700,000 • 4 bed • 2 bath • 1311 ft²














































