Large plot and private countryside outlook—ideal for a renovation-focused family buyer.
Chain free four-bedroom detached house on 0.21-acre plot
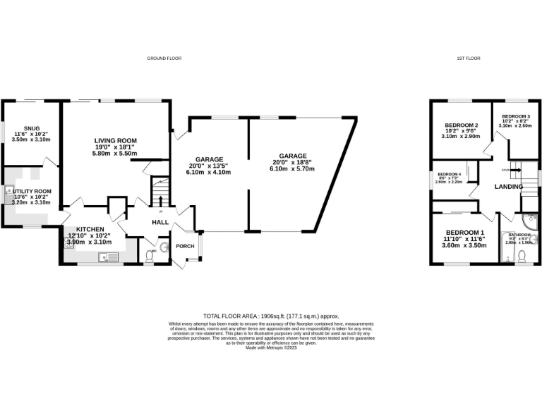
Set in a quiet cul-de-sac on a generous 0.21-acre plot, this detached four-bedroom home is offered chain free and ready for someone to reimagine. The house sits back from the road behind a long driveway with an attached double garage and a broad front lawn — plenty of parking and storage for family life.
Inside, the layout provides flexible living: a large rear reception room with sliding doors opens onto a private garden backing onto fields, a separate kitchen with utility room, a cosy snug and a ground-floor WC. Four well-proportioned bedrooms and a family bathroom with both bath and separate shower sit on the first floor. Large windows and mid-century parquet/floorboards bring good natural light throughout.
The property requires renovation and modernisation: dated interiors, heating and glazing installed before 2002, and general updating are needed. That said, the size of the plot and the house’s 1960s/70s footprint offer clear scope to extend or reconfigure (subject to planning), making it a sensible long-term family home or a renovation-led value purchase.
Located in the Surrey Hills fringe with good local schools and fast broadband, the house combines country outlook with commuter convenience. Note the property is freehold, council tax band F (expensive) and there is no flooding risk. This is an appealing opportunity for buyers seeking privacy, outdoor space and the chance to create a contemporary family residence from a solid, characterful shell.
 4 bedroom detached house for sale in Springhill, Elstead, Godalming, Surrey, GU8 — £850,000 • 4 bed • 3 bath • 2000 ft²
 4 bedroom detached house for sale in Springhill, Elstead, Godalming, Surrey, GU8 — £850,000 • 4 bed • 3 bath • 2000 ft² 5 bedroom detached house for sale in Silver Birches Way, Elstead, Farnham, Surrey, GU8 — £1,095,000 • 5 bed • 3 bath • 2379 ft²
 5 bedroom detached house for sale in Silver Birches Way, Elstead, Farnham, Surrey, GU8 — £1,095,000 • 5 bed • 3 bath • 2379 ft² 5 bedroom detached house for sale in Gadbridge Lane, Ewhurst, GU6 — £850,000 • 5 bed • 2 bath • 2592 ft²
 5 bedroom detached house for sale in Gadbridge Lane, Ewhurst, GU6 — £850,000 • 5 bed • 2 bath • 2592 ft² 4 bedroom detached house for sale in Norbury Way, Great Bookham, KT23 — £775,000 • 4 bed • 1 bath • 1372 ft²
 4 bedroom detached house for sale in Norbury Way, Great Bookham, KT23 — £775,000 • 4 bed • 1 bath • 1372 ft² 5 bedroom detached house for sale in Woodham Park Road, Woodham, Addlestone, Surrey, KT15 — £800,000 • 5 bed • 2 bath • 1438 ft²
 5 bedroom detached house for sale in Woodham Park Road, Woodham, Addlestone, Surrey, KT15 — £800,000 • 5 bed • 2 bath • 1438 ft² 4 bedroom house for sale in Burford Lea, Elstead, Godalming, GU8 — £1,250,000 • 4 bed • 3 bath • 2201 ft²
 4 bedroom house for sale in Burford Lea, Elstead, Godalming, GU8 — £1,250,000 • 4 bed • 3 bath • 2201 ft²


























































