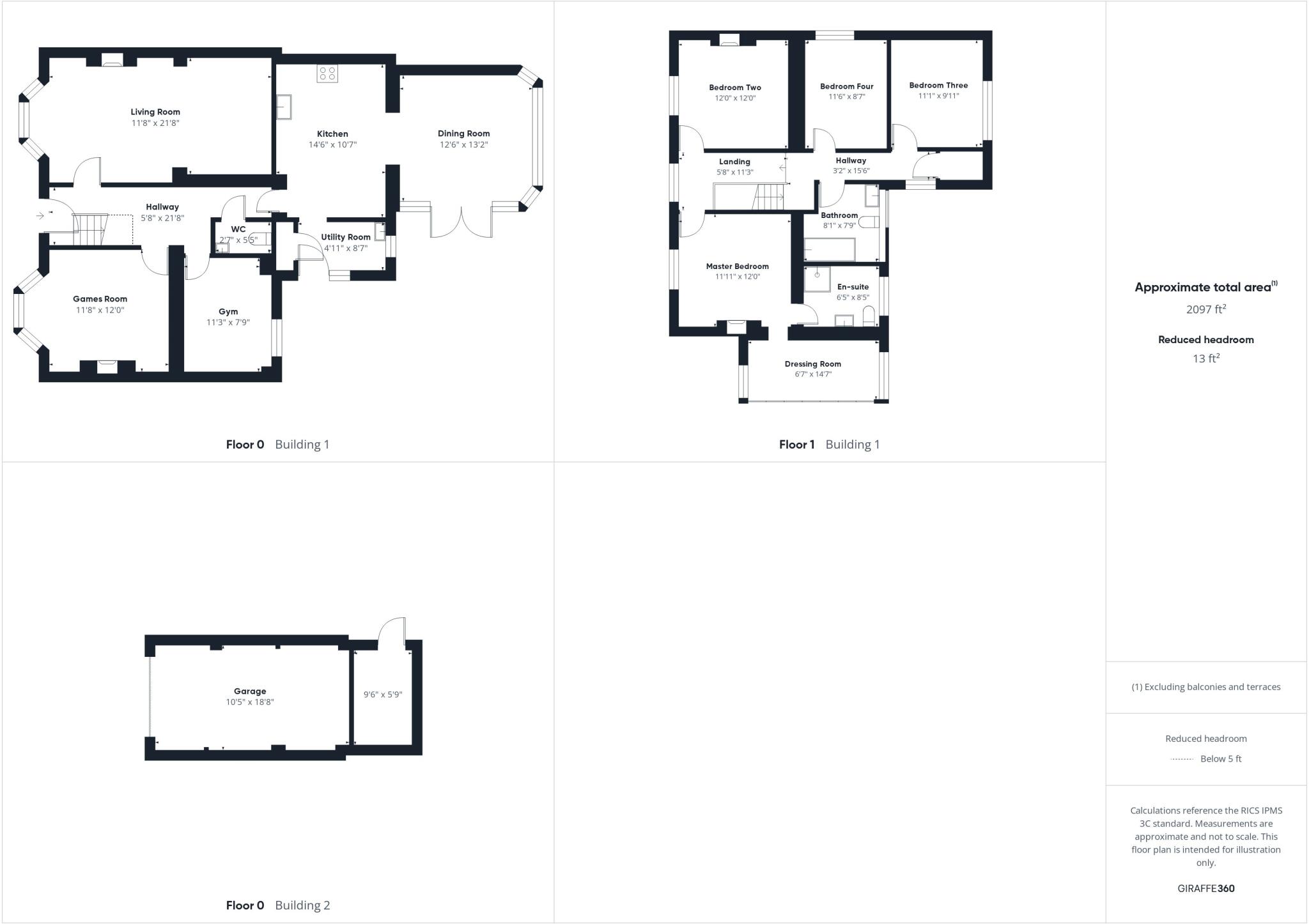
**Standout Features:**
- Spacious 2097 sq. ft. detached Edwardian brick property
- Four double bedrooms including a master suite with en-suite and dressing room
- Recently renovated kitchen leading to a light-filled dining area
- Dedicated games room and flexible gym/office space
- Large, private rear garden with entertainment potential
- Ample off-road parking for up to five cars, plus a garage
- Conveniently located near excellent schools and public transport
Discover a charming family haven on Reading Road in Blackwater, where modern comfort perfectly intertwines with timeless elegance. This generously sized detached home offers four well-appointed double bedrooms, including a luxurious master suite with its own ensuite and dressing room. Ideal for entertaining and daily living, the newly renovated kitchen opens into a bright dining area, complemented by a spacious living room centered around a cozy log burner. The dedicated games room and flexible gym provide plenty of options for leisure or work.
The expansive rear garden offers a private retreat perfect for families who enjoy outdoor living and gatherings, complete with a smart patio area to soak up the sun. Parking is a breeze with ample space for up to five vehicles, alongside an attached garage. Nestled within a desirable neighborhood, this property is just a stone's throw from local schools and amenities, ensuring convenience at every turn.
However, potential buyers should be aware of the maintenance of the cavity walls and double glazing throughout, as well as the need for continued vigilance on the home's upkeep to maintain its exceptional condition. This beautifully presented home is not just a place to live; it's an opportunity for a loving family to create lasting memories in a superior environment. Don’t miss your chance to call this exquisite property your forever home!



































































