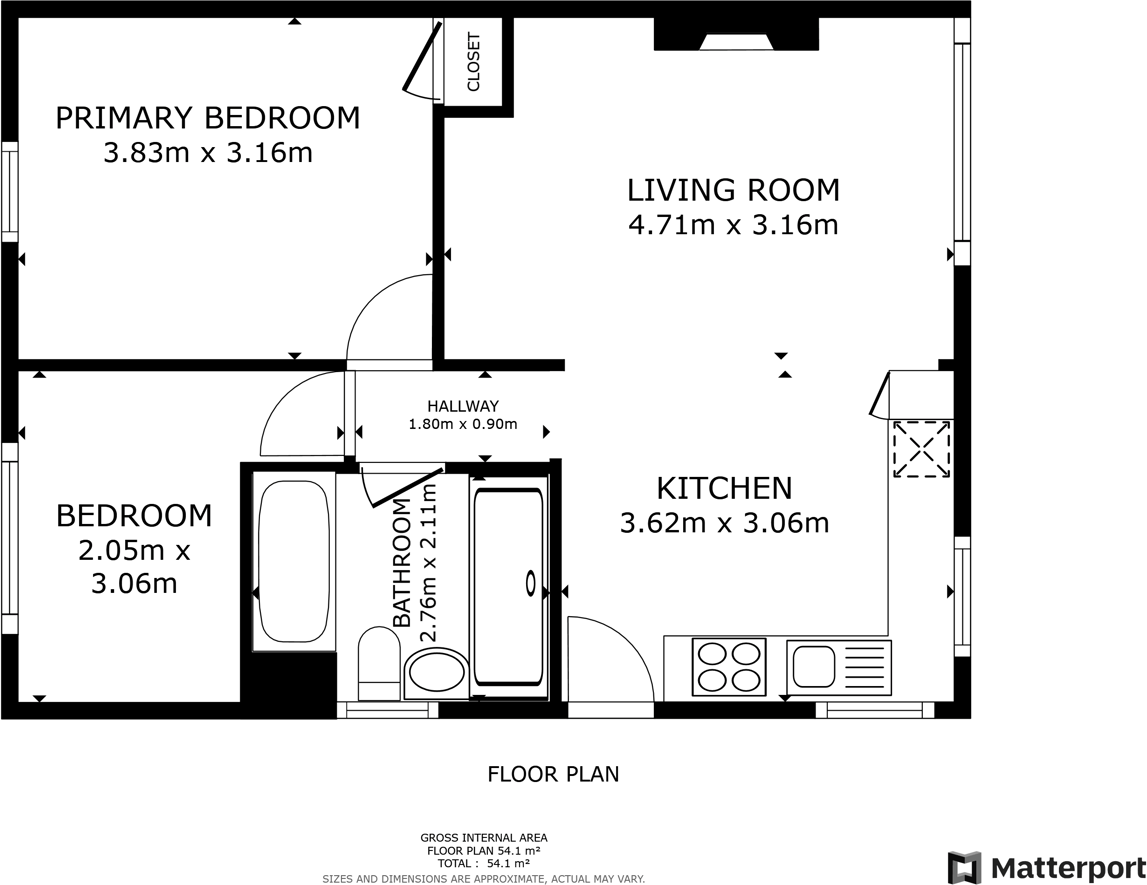
Newly renovated semi in Armthorpe — low-maintenance living with insulated summer house and decent gardens..
Two double bedrooms with contemporary finishes
Open-plan breakfast kitchen and lounge, bright and practical
Converted garage now insulated summer house/home office
Loft fully boarded and insulated for storage or conversion
Driveway plus front and rear gardens; low-maintenance plot
Compact overall size (~582 sqft) — limited living space
Single family bathroom only; suitable for downsizers or couples
Double glazing present; installation date unknown
This recently renovated two-bedroom semi-detached bungalow on Ravenfield Road suits buyers seeking low‑maintenance, single‑storey living. The open-plan breakfast kitchen and lounge create a bright, sociable heart to the home, while contemporary finishes make it move‑in ready.
Practical extras include a fully insulated, boarded loft and a converted garage now used as a well-insulated summer house — useful as a home office, hobby room or extra storage. Off-street parking on the driveway, plus front and rear gardens, give private outdoor space without large upkeep.
Be aware the property is compact at around 582 sqft with a single family bathroom, so space is best suited to downsizers or those wanting a simple, efficient home. The garage conversion means there’s no traditional lock-up garage capacity. Double glazing is present but installation date is unknown. Constructed in the late 1960s–1970s, the bungalow sits in a very affluent, low-crime area with fast broadband and convenient local schools and amenities.
Overall this bungalow offers a tidy, contemporary base for those seeking a comfortable, single‑level property in Armthorpe. It balances practical modern upgrades with the modest footprint typical of mid‑20th century bungalows.
3 bedroom semi-detached bungalow for sale in Hallcroft Drive, Armthorpe, Doncaster, DN3 — £200,000 • 3 bed • 1 bath • 724 ft²
2 bedroom bungalow for sale in Oakwood Drive, Armthorpe, Doncaster, DN3 — £190,000 • 2 bed • 1 bath • 603 ft²
2 bedroom semi-detached bungalow for sale in Hallcroft Drive, Doncaster, DN3 — £200,000 • 2 bed • 1 bath • 635 ft²
3 bedroom semi-detached bungalow for sale in Hallcroft Drive, Armthorpe, Doncaster, DN3 — £170,000 • 3 bed • 1 bath • 770 ft²
2 bedroom semi-detached bungalow for sale in Harrow Road, Armthorpe, Doncaster, South Yorkshire, DN3 — £170,000 • 2 bed • 1 bath • 848 ft²
2 bedroom detached bungalow for sale in Tranmoor Avenue, Bessacarr, Doncaster, DN4 — £230,000 • 2 bed • 1 bath • 1046 ft²






























































