SA33 6NR - Plot for sale in Talog, Carmarthen, SA33

View on Property Piper

Plot for sale in Talog, Carmarthen, SA33

Summary - Talog, Carmarthen, SA33 SA33 6NR

1 bed 1 bath Plot

**Standout Features:**
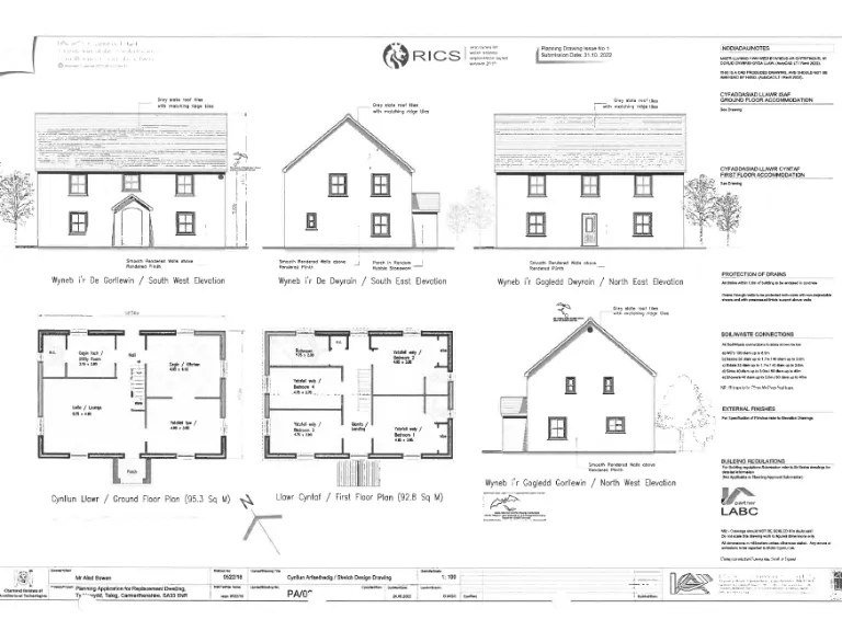
- Approximately 7 acres of rural land
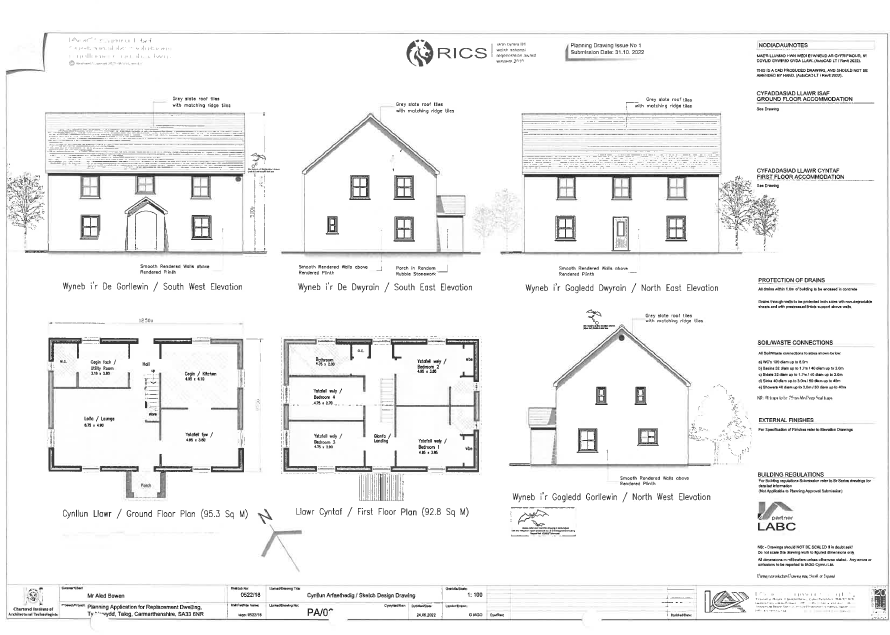
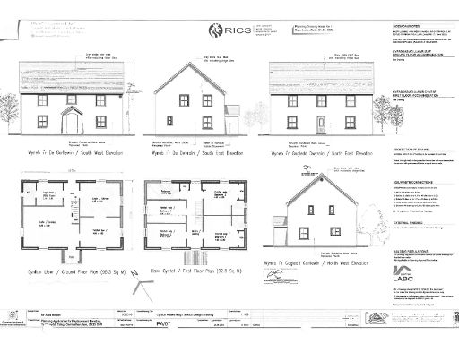
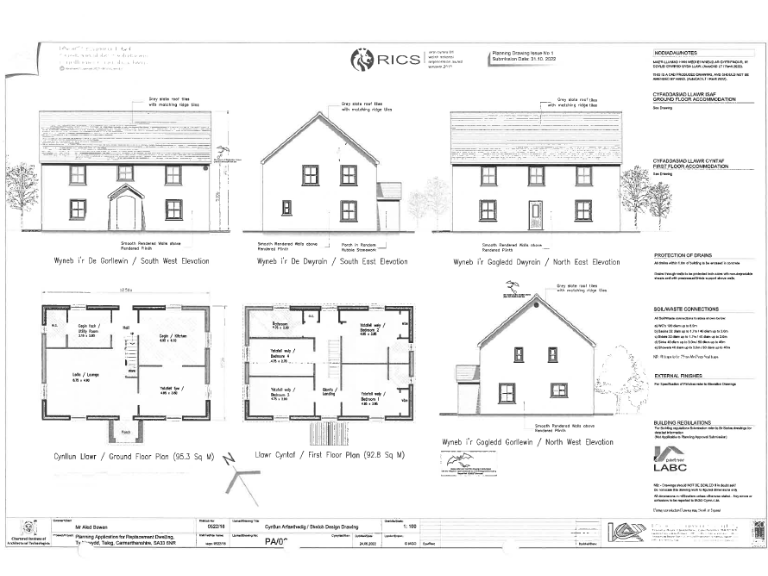
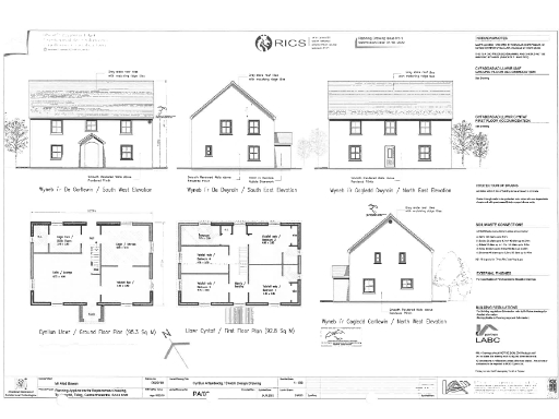
- Planning permission for a spacious 4-bedroom dwelling with 2 reception rooms
- Superb views and privacy set within its own land
- Mains electricity available on site
- Easement for connecting to mains water supply nearby
- Very low crime rates in the area

**Potential Downsides:**
- Limited mobile signal; average connectivity
- Very slow broadband speeds
- Located in a rural and relatively deprived area

This impressive building plot of nearly 7 acres is ideal for those seeking a serene country lifestyle while planning their dream home. With planning permission granted for a generous 4-bedroom and 2-reception-room dwelling, this land offers a blank canvas for personal touches. Nestled in an idyllic rural setting, imagine basking in stunning views of the rolling countryside, creating layers of privacy amidst lush greenery.

While the location provides an escape from urban hustle, it’s worth noting the access to high-speed broadband is limited and mobile signals are average. However, with mains electricity already available and an easement for water connection, this plot is primed for development. This opportunity is perfect for families looking to build their forever home or investors eager to embark on a lucrative construction project. Don't miss out on this unique opportunity; land of this size, with such plans in place, is a rare find in the market!

Property Details

Brochure Descriptions

Image Descriptions

Floorplan Description

Rooms

Textual Property Features

Detected Visual Features

Nearest Bars And Restaurants

,,,,}

Nearest General Shops

,,}

Nearest Grocery shops

,,}

Nearest Supermarkets

,,}

Nearest Religious buildings

,,}

Nearest Medical buildings

,,,}

Nearest Leisure Facilities

,,,,}

Nearest Tourist attractions

,,}

Nearest Train stations

,,,,}

Nearest Bus stations and stops

,,,,}

Nearest Hotels

,,}

Tags

Local Market Stats

AirBnB Data

Similar Properties

Meta

High Res Images

Compatible Images

Low res Images

Thumbnails

Raw Images

High Res Floorplan Images

Compatible Floorplan Images

Low res Floorplan Images

FloorplanImages Thumbnail

Raw Floorplan Images