**Standout Features:**
- Detached park home for over 50s living
- Scenic countryside views
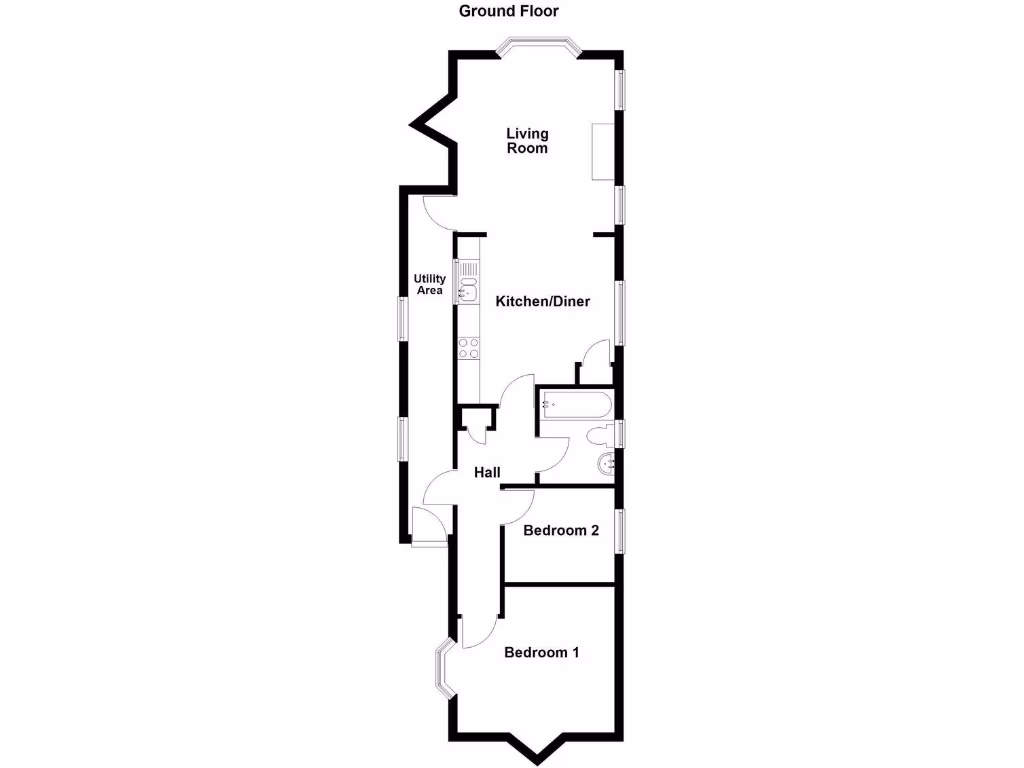
- 2 bedrooms, lounge, kitchen/diner, and bathroom
- Off-street parking and garden space
- LPG central heating and double glazing
- Chain-free sale with infinite occupancy rights
**Property Summary:**
Discover your peaceful retreat in this charming detached park home situated in Beechdown Park, perfect for those aged 50 and over. This cozy single-storey residence features two comfortable bedrooms, a lounge that boasts triple-aspect windows with lovely views, and an inviting kitchen/diner ready for your personal touch. With some renovation needed, there’s ample opportunity to make this space truly your own, whether upgrading fixtures or refreshing the decor.
Enjoy the convenience of off-street parking alongside your private garden space, where you can relax and soak in the serene countryside surroundings. The property is fitted with double glazing and LPG central heating, ensuring comfort year-round. While the overall size is manageable, ideal for individuals or couples, please note that the property requires some improvements to reach its full potential.
With the surrounding area offering a peaceful lifestyle and basic amenities, this home could be an excellent choice for those seeking a quiet, manageable living environment. Don’t miss out on the opportunity to own a slice of rural tranquility—properties in this sought-after park community are not on the market for long.
1 bedroom park home for sale in Totnes Road,Paignton,TQ4 7QB, TQ4 — £75,000 • 1 bed • 1 bath • 418 ft²
2 bedroom chalet for sale in Totnes Road, Paignton, Devon, TQ4 7QB, TQ4 — £99,950 • 2 bed • 1 bath • 587 ft²
2 bedroom mobile home for sale in 23 Fairlawns Park Grange Road , Goodrington, Paignton, Devon, TQ4 7JL, TQ4 — £172,500 • 2 bed • 1 bath • 605 ft²
2 bedroom mobile home for sale in Beechdown Park, Totnes Road, Blagdon, Devon, TQ4 7PS, TQ4 — £119,995 • 2 bed • 1 bath • 450 ft²
2 bedroom park home for sale in Paignton, Devon, TQ4 — £175,000 • 2 bed • 1 bath • 600 ft²
1 bedroom park home for sale in Totnes Road, Paignton, TQ4 — £85,000 • 1 bed • 1 bath














































