Well-proportioned family home with garage, driveway and quick station access.
Three bedrooms over three floors with master en suite
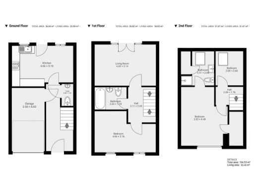
A well-presented three-bedroom townhouse arranged over three floors, offering flexible family living in a popular Guiseley location. The ground-floor kitchen-diner opens to a low-maintenance rear garden with decking and artificial turf — a practical outdoor space for children and entertaining. The bright first-floor lounge features a Juliet balcony, and the second-floor master bedroom includes an en suite and useful built-in storage.
Practical benefits include a large integral garage with light, power and water (potential to convert subject to building regulations), plus a double tarmac driveway providing two off-street parking spaces. The property has gas central heating, double glazing and an EPC C rating. Commuters gain quick access to Guiseley station (under a mile, closer via a local shortcut).
This home will suit families looking for good local schools, nearby amenities and easy transport links. The leasehold tenure (200 years from 2007, c.178 years remaining) and a below-average annual service charge are straightforward to note; council tax sits at Band D. Overall the house offers roomy, modern accommodation with sensible running costs and clear potential for slight adaptation.
Notable constraints: the property is leasehold with a modest service charge and conversion of the garage would require planning/building-regulation approval. The overall size is average for a townhouse and the EPC is mid-range (C), so future buyers seeking top energy efficiency should expect potential upgrade costs.
3 bedroom town house for sale in Silver Cross Way, Guiseley, LS20 — £350,000 • 3 bed • 2 bath • 1161 ft²
4 bedroom semi-detached house for sale in Alva Close, Guiseley, Leeds, LS20 — £350,000 • 4 bed • 3 bath • 1137 ft²
4 bedroom town house for sale in Silver Cross Way, Guiseley, Leeds, West Yorkshire, LS20 — £395,000 • 4 bed • 2 bath • 1340 ft²
3 bedroom end of terrace house for sale in Kelcliffe Grove, Guiseley, Leeds, West Yorkshire, LS20 — £339,950 • 3 bed • 1 bath • 834 ft²
3 bedroom semi-detached house for sale in Fieldhead Road, Guiseley, Leeds, West Yorkshire, LS20 — £330,000 • 3 bed • 1 bath • 979 ft²
4 bedroom semi-detached house for sale in Jacquard Gardens, Guiseley, Leeds, LS20 — £475,000 • 4 bed • 3 bath • 1356 ft²






















































































