Freehold, chain-free sale with immediate vacant possession
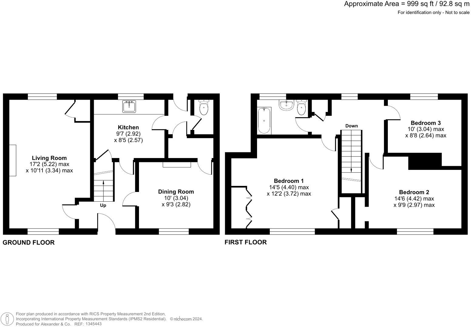
A spacious three-bedroom terraced house on Bourtonville with a very large plot and genuine scope for improvement. The property offers two reception rooms, a kitchen, downstairs cloakroom and a generously sized rear lawn that stretches well beyond typical mid-terrace gardens. Off-street parking and no onward chain make it straightforward for a buyer ready to start works.
The house is presented in dated condition and requires comprehensive modernisation throughout — likely new kitchen and bathroom fittings, redecoration, and updating of internal finishes. Structurally the building appears sound with cavity walls and later double glazing; recommended inspections include roof, party walls and services before purchase. Heating is mains gas via boiler and radiators.
This will suit a family or investor who wants a project with clear uplift potential: good room proportions across almost 1,000 sq ft, easy walking distance to Buckingham town centre, nearby secondary schools, Buckingham University and local amenities. Note the area data records higher local crime levels — buyers should factor security and neighbourhood checks into their decision.
Priced to reflect its renovation need, the property is freehold, chain-free and benefits from fast broadband and excellent mobile signal. With a large plot and parking, it offers scope to create a comfortable family home or a lettable asset after sensible refurbishment.
3 bedroom cottage for sale in Mitre Street, Buckingham, MK18 — £339,995 • 3 bed • 2 bath • 1433 ft²
3 bedroom terraced house for sale in St. Rumbolds Lane, Buckingham, Buckinghamshire, MK18 — £300,000 • 3 bed • 1 bath • 722 ft²
3 bedroom semi-detached house for sale in Western Avenue, Buckingham, MK18 — £350,000 • 3 bed • 1 bath • 1188 ft²
4 bedroom semi-detached house for sale in Overn Avenue, Buckingham , MK18 — £375,000 • 4 bed • 3 bath • 1133 ft²
3 bedroom terraced house for sale in St. Rumbolds Lane, Buckingham, Buckinghamshire, MK18 — £110,000 • 3 bed • 1 bath • 1315 ft²
3 bedroom character property for sale in Lenborough Road, Buckingham, MK18 — £200,000 • 3 bed • 1 bath • 781 ft²


















































































