Compact family-friendly house near the beach with garden and modern bathroom.
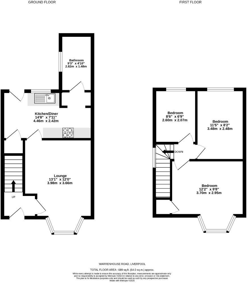
Three bedrooms in a 1930s semi-detached home
Freehold tenure with gas central heating and double glazing
Short walk to Brighton-le-Sands beach and coastal amenities
Modern downstairs bathroom renewed two years ago
Good-size rear lawn garden, low-maintenance outdoor space
Overall internal size approx. 689 sq ft — compact room sizes
Small plot and forecourt; limited outdoor/private parking
Area: aspirational urban neighbourhood within blue-collar locality
This well-presented three-bedroom semi-detached home sits a short stroll from Brighton-le-Sands beach, making it a good pick for families who value seaside access and outdoor time. The layout is straightforward: a cosy front reception, a separate fitted kitchen and a modern downstairs bathroom refurbished two years ago. Gas central heating and double glazing provide year-round comfort.
The rear garden is laid to lawn and offers a pleasant outdoor space for children and summer gatherings, while the small forecourt and driveway provide simple, low-maintenance kerb appeal. The property is freehold and occupies a traditional 1930s brick-built house, retaining some character features alongside practical modern upgrades.
Buyers should note the house is modest in overall size (approximately 689 sq ft) with a relatively small plot, so room sizes are compact. The wider area is a blue-collar, aspirational neighbourhood with average crime and amenities nearby, including good local schools and leisure facilities. While presented in good order, there is scope for modest modernisation to personalise the interior and maximise value.
This home suits a family or first-time buyer seeking affordable coastal living with practical outdoor space. An internal inspection is recommended to confirm room sizes and layout for family needs.
3 bedroom terraced house for sale in Eastbourne Road, Brighton-Le-Sands, L22 — £220,000 • 3 bed • 1 bath • 861 ft²
2 bedroom semi-detached house for sale in Endsleigh Road, Brighton-le-Sands, Liverpool, Merseyside, L22 — £190,000 • 2 bed • 1 bath • 813 ft²
3 bedroom semi-detached house for sale in Somerset Road, Brighton-Le-Sands, Liverpool, L22 — £280,000 • 3 bed • 1 bath • 863 ft²
3 bedroom semi-detached house for sale in Riverslea Road, Crosby, L23 — £265,000 • 3 bed • 1 bath • 1176 ft²
5 bedroom semi-detached house for sale in Brooke Road West, Brighton-Le-Sands, Liverpool, L22 — £325,000 • 5 bed • 1 bath • 1870 ft²
2 bedroom semi-detached house for sale in Endsleigh Road, Brighton-le-Sands, Liverpool, Merseyside, L22 — £190,000 • 2 bed • 1 bath • 689 ft²






































































































