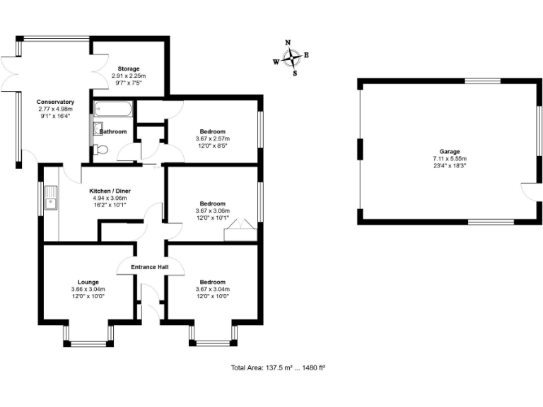
**Standout Features:**
- Detached mid-century bungalow with three bedrooms and a double garage
- Spacious property at approximately 1,400 sq ft
- Conservatory providing additional living space
- Timber frame workshop, perfect for projects or storage
- Beautifully hedged gardens, ideal for outdoor enjoyment
- Located on the outskirts of a quiet village, offering scenic country views
- No chain, offering a quick purchase process
**Potential Concerns:**
- Requires significant renovation, including addressing damp and mould issues
- The property suffered flooding following Storm Babet in 2023, requiring further remedial work
Nestled in a serene hamlet just outside the village, this charming three-bedroom detached bungalow is a golden renovation opportunity for buyers seeking country tranquility and future potential. The home features a bright conservatory, timber workshop, and a generous double garage, all set within impressively hedged gardens that offer privacy and space for outdoor activities. With no chain, this property stands ready for a new owner to make their mark.
While its large size at approximately 1,400 sq ft and appealing rural setting present a canvas for creativity, prospective buyers should be aware of necessary renovations and recent flooding issues that need to be addressed. Given its rich potential in an affluent area and the low crime rate, this property could be transformed into a dream family home or an ideal investment. Viewing is advised to fully appreciate this exclusive offering in a tranquil countryside environment—don't miss out on your chance to bring this property back to life!
3 bedroom semi-detached house for sale in Bedfield, IP13 — £395,000 • 3 bed • 2 bath • 1589 ft²
3 bedroom detached bungalow for sale in Elgin, Bedfield, Suffolk, IP13 — £395,000 • 3 bed • 1 bath • 1165 ft²
2 bedroom detached bungalow for sale in Green Lane, Stonham, IP14 — £325,000 • 2 bed • 1 bath • 843 ft²
3 bedroom semi-detached house for sale in Mill Road, Worlingworth, IP13 — £225,000 • 3 bed • 1 bath • 1138 ft²
3 bedroom detached bungalow for sale in Bedfield, IP13 — £385,000 • 3 bed • 1 bath • 958 ft²
4 bedroom chalet for sale in Bedfield, IP13 — £475,000 • 4 bed • 2 bath • 1700 ft²










































