**Standout Features:**
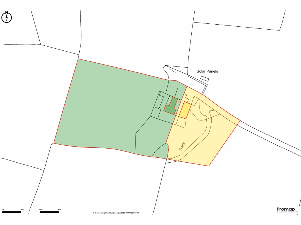
- Two building plots (1 acre and 2.53 acres) located in a picturesque rural setting near North Molton.
- Stunning countryside views, making it an ideal spot for a family home or investment opportunity.
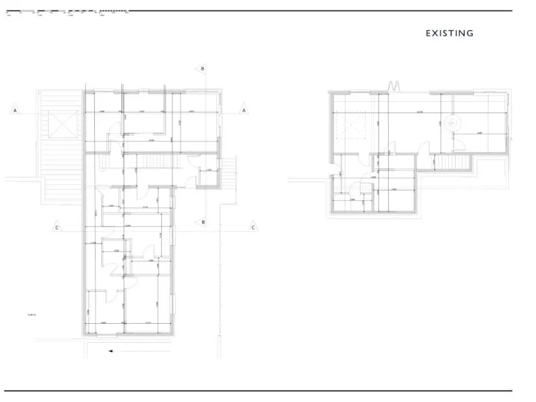
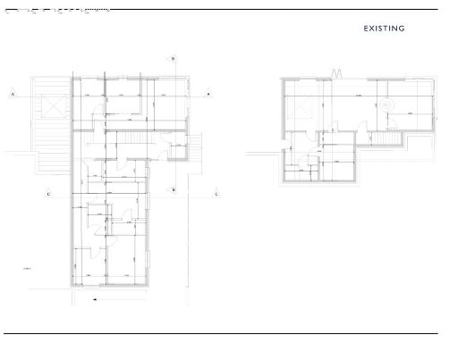
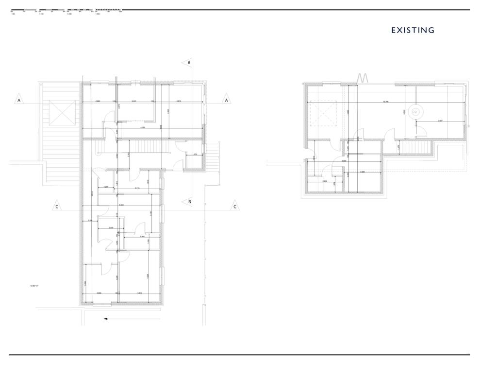
- Planning permission granted for the demolition of existing structures to erect two residential dwellings.
- Chain-free, offering a straightforward purchasing process.
- Excellent mobile signal and very low crime rates in the area.
- Access to community amenities within a short distance.
**Summary:**
Seize the opportunity to create your dream home or invest in an exceptional development with two picturesque building plots in idyllic North Molton. These plots, totaling a generous 3.53 acres, boast breathtaking countryside views and are convenient to local amenities, including shops and schools. The east plot, about 1 acre, is designated for a single-storey four-bedroom home, while the expansive 2.53-acre west plot is suited for a two-storey four-bedroom dwelling. Both plots come with granted planning permission, offering the potential for a remarkable family residence or an investment for multi-generational living.
While the current vendors are in the process of clearing the sites, you will need to install a private borehole for water and a new treatment plant for drainage. Given the scenic location and flexibility for development, these plots are not expected to stay on the market long. Don’t miss this chance to secure a prime piece of the countryside—explore your future here today!



































































