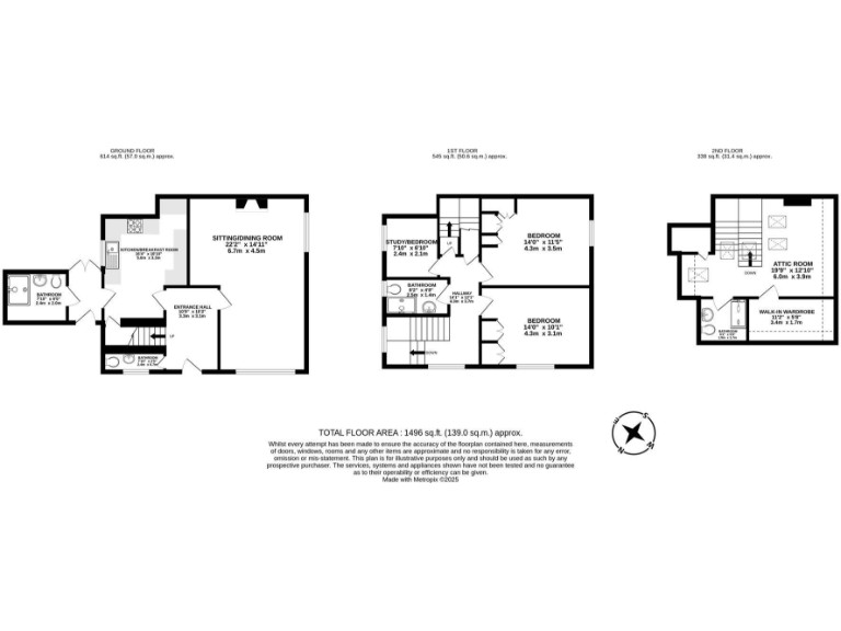
Chain-free family home with large plot and strong renovation potential.
- Three/four bedrooms across three floors, including attic bedroom with skylights
- Two reception rooms with exposed floor timbers and feature fireplace
- Large wrap-around plot; courtyard rear, summer house and storage shed
- Ground-floor wet room plus family bathroom and cloakroom facilities
- Requires modernisation throughout; refurbishment opportunity to add value
- Oil-fired central heating; on-site oil tank — consider running costs
- Services and appliances untested; survey recommended before offer
- Chain free and good broadband/mobile connectivity
This substantial three/four-bedroom semi-detached house on Wavell Close offers generous living space over three floors and a large wrap-around plot. The property includes two reception rooms, a fitted kitchen/breakfast room, a ground-floor wet room, and an attic bedroom with skylights and a walk-in wardrobe — well suited to a growing family or a buyer wanting extra living flexibility. The house is chain free, giving a straightforward purchase route for someone ready to renovate.
The home has strong potential for uplift: exposed floor timbers, original fireplaces and a sizeable garden offer character and scope for extension or reconfiguration (subject to checks). Practical positives include fast broadband, excellent mobile signal, and relatively low council tax. The layout already provides multiple bathrooms and cloakrooms, reducing immediate conversion work if retaining the four-bedroom arrangement.
Notable drawbacks are factual and material: the property needs modernization throughout and services/appliances have not been tested. Heating is oil-fired (oil tank on site), which may be a consideration for running costs and future servicing. The wider area shows pockets of deprivation and local schools vary in performance; buyers should check local service standards. The rear garden is courtyard-paved with sheds and a summer house but requires upkeep.
This house suits a buyer with vision — someone wanting to improve value through targeted refurbishment or a family seeking spacious rooms and character with scope to modernize. Viewing and a full survey are recommended to assess electrical, heating and structural condition before committing.
3 bedroom terraced house for sale in Wavell Close, Stewartby, Bedford, MK43 — £270,000 • 3 bed • 1 bath • 692 ft²
4 bedroom detached house for sale in Heather Lane, Stewartby, Bedford, MK43 — £475,000 • 4 bed • 2 bath
3 bedroom semi-detached house for sale in School Lane, Stewartby, BEDFORD, MK43 — £390,000 • 3 bed • 1 bath • 777 ft²
3 bedroom semi-detached house for sale in School Lane, Stewartby, Bedford, MK43 — £390,000 • 3 bed • 1 bath • 603 ft²
4 bedroom detached house for sale in Heather Lane, Stewartby, Bedford, Bedfordshire, MK43 — £475,000 • 4 bed • 3 bath • 1439 ft²
3 bedroom semi-detached house for sale in Carlton Close, Newport Pagnell, MK16 — £350,000 • 3 bed • 1 bath • 1101 ft²










































































