SW16 5BG - 4 bed renovated four bedroom terraced in Braeside Road, SW1…

View on Property Piper

4 bedroom terraced house for sale in Braeside Road, London, SW16

Summary - 18 BRAESIDE ROAD LONDON SW16 5BG

4 bed 2 bath Terraced

Move-in-ready family home with large loft master and garage parking close to rail links.
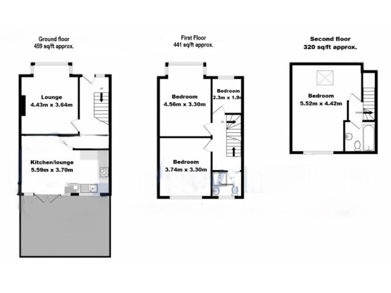
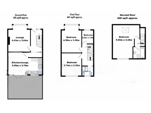
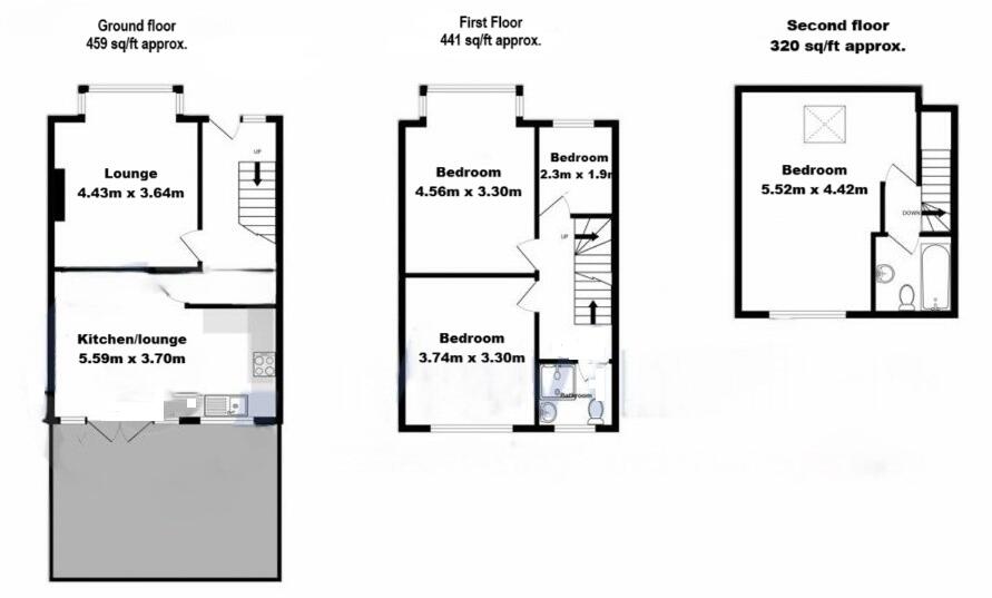
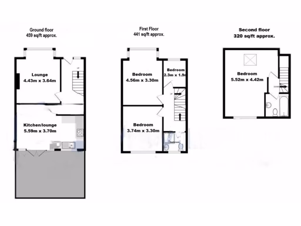
- Four double bedrooms including large loft-conversion master bedroom
- Recently renovated throughout with new wood flooring on ground floor
- Small rear garden with patio; low-maintenance outdoor space
- Garage for parking and storage, on-street parking options limited
- Five-minute walk to Streatham Common station; strong transport links
- Several highly rated local schools within easy reach
- Medium flooding risk for the area; mitigation may be needed
- Located in an area with higher deprivation and limited plot size
This recently renovated four-bedroom terraced house combines modern finishes with classic period proportions over multiple storeys. A well-built loft extension creates a large master bedroom with an en-suite bathroom, while new wooden flooring and fresh interiors offer a move-in-ready family home.

The ground floor opens to a bright living area with sliding doors onto a rear patio and small garden — an easy outdoor space for children and summer barbecues. A garage provides off-street parking and storage, useful in this busy London neighbourhood.

Transport links are strong: Streatham Common station is about a five-minute walk with direct services into central London, and Balham Underground is easily accessible. Local schools include several highly rated options within easy reach, helping make this a practical choice for growing families.

Be aware of some material considerations: the property sits in a medium flood-risk zone and the surrounding area shows higher levels of deprivation. The plot is compact, so the garden and outdoor space are modest. Council tax banding is not provided and should be confirmed before purchase.

Property Details

Image Descriptions

Floorplan Description

Rooms

Textual Property Features

Target Audience

AI Tags

Detected Visual Features

Nearby Schools

Nearest Bars And Restaurants

,,,,}

Nearest General Shops

,,}

Nearest Grocery shops

,,}

Nearest Supermarkets

,,}

Nearest Religious buildings

,,}

Nearest Medical buildings

,,,}

Nearest Airports

,,}

Nearest Leisure Facilities

,,,,}

Nearest Tourist attractions

,,}

Nearest Train stations

,,,,}

Nearest Bus stations and stops

,,,,}

Nearest Hotels

,,}

Tags

Local Market Stats

AirBnB Data

Similar Properties

Meta

High Res Images

Compatible Images

Low res Images

Thumbnails

Raw Images

High Res Floorplan Images

Compatible Floorplan Images

Low res Floorplan Images

FloorplanImages Thumbnail

Raw Floorplan Images